Compact, well-located home with garden and parking, close to Surrey Quays.
Three bedrooms across three floors, bright interiors throughout
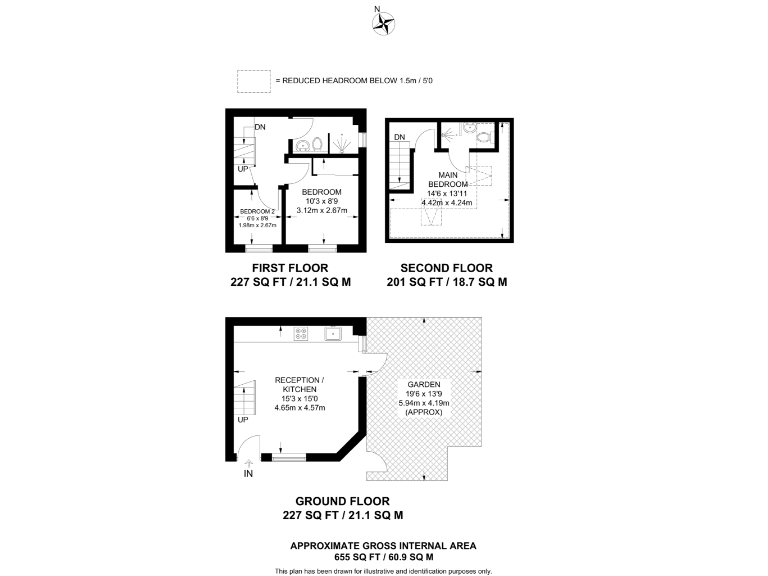
A compact, bright three-bedroom house arranged over three floors, set moments from Greenland Dock and Surrey Quays. The ground floor offers an open-plan living and contemporary kitchen with patio access to a small private garden — ideal for relaxed outdoor space without heavy maintenance. Off-street parking is included, a rare convenience for the area.
The property is best suited to buyers seeking a well-located, low-upkeep home rather than large-room proportions. The overall floor area is small (approximately 655 sq ft) and ceiling heights and compact stairs reduce some internal volume; rooms are bright but space is limited. Heating is via electric storage heaters, so buyers should expect higher running costs or consider replacing the system for efficiency gains.
Practical strengths include freehold tenure, very low flood risk and excellent mobile and broadband connectivity. Local amenities and green space are strong — Southwark Park, Rotherhithe town and Canada Water transport links are all close — and several well-rated schools are within easy reach. Note the area records above-average crime statistics; prospective purchasers should assess security and local conditions personally.
3 bedroom apartment for sale in Swedish Quays, Rope Street, Surrey Docks SE16 — £850,000 • 3 bed • 3 bath • 1420 ft²
4 bedroom terraced house for sale in Greenland Quay, London, SE16 — £775,000 • 4 bed • 2 bath • 939 ft²
3 bedroom terraced house for sale in Brunswick Quay, London, SE16 — £750,000 • 3 bed • 2 bath • 1028 ft²
3 bedroom semi-detached house for sale in Reveley Square, London, SE16 — £700,000 • 3 bed • 1 bath • 688 ft²
3 bedroom end of terrace house for sale in Cunard Walk, Surrey Quays, London, SE16 — £600,000 • 3 bed • 2 bath • 674 ft²
2 bedroom flat for sale in Plough Way, Surrey Quays, SE16 — £500,000 • 2 bed • 2 bath • 731 ft²


























































































































































































































































