Bright open-plan living moments from the village high street.
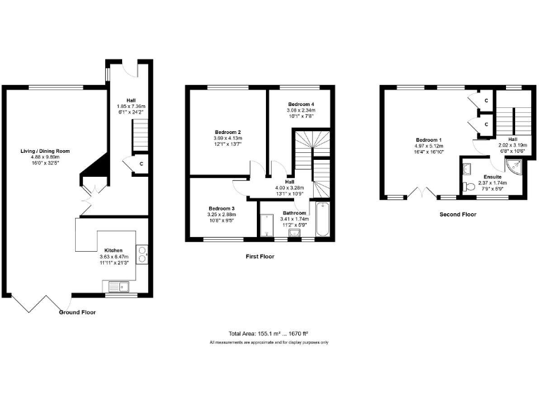
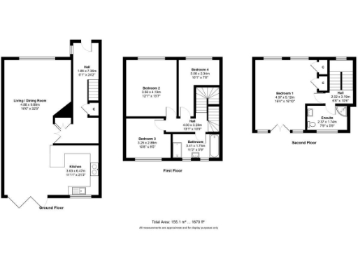
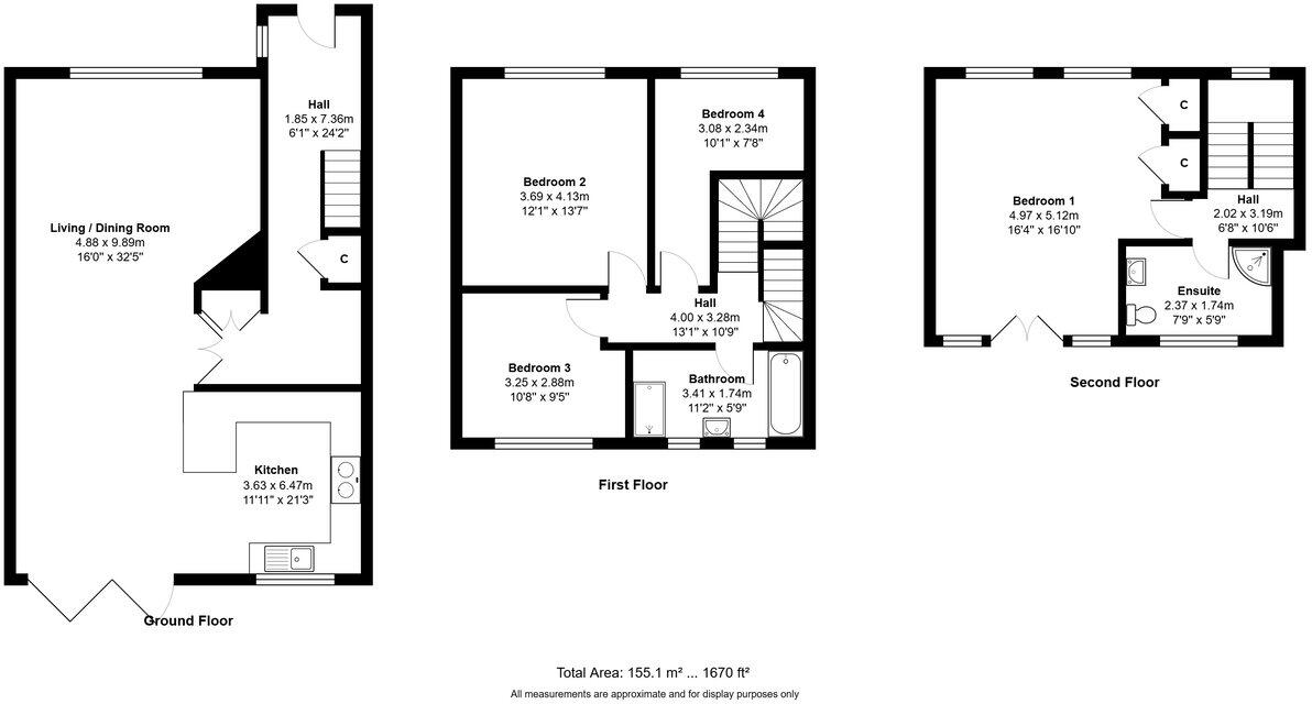
Extended four-bedroom semi-detached with loft conversion and Juliet balcony
This extended four-bedroom semi-detached house combines contemporary open-plan living with practical family accommodation. A loft conversion provides a principal bedroom with ensuite and Juliet balcony, while the kitchen extension with bi-fold doors floods the ground floor with light and links directly to the garden.
The layout suits everyday family life: a large living/dining space, four double bedrooms across three floors, two bathrooms, and off-street parking for two cars with potential for an additional space. The property is freehold, in a very low-crime, affluent area close to the village high street and well-regarded schools.
Rooms are well presented, though a number are described as average-sized rather than particularly generous. Outdoor space is decent and low-maintenance, and the home benefits from fast broadband and excellent mobile signal. Buyers wanting more parking certainty or larger reception proportions should factor that in when viewing.
4 bedroom semi-detached house for sale in Paradise Orchard, Aylesbury, HP18 — £490,000 • 4 bed • 1 bath • 1489 ft²
4 bedroom semi-detached house for sale in Kipling Grove, Hemel Hempstead, HP2 — £440,000 • 4 bed • 1 bath • 1020 ft²
3 bedroom semi-detached house for sale in Dudley Close, Bovingdon, HP3 — £630,000 • 3 bed • 1 bath • 1323 ft²
4 bedroom semi-detached house for sale in Holloways Lane, Welham Green, AL9 — £760,000 • 4 bed • 2 bath • 1424 ft²
4 bedroom semi-detached house for sale in Christchurch Road, Old Town Borders, Hemel Hempstead, Hertfordshire, HP2 5BX, HP2 — £675,000 • 4 bed • 2 bath • 1491 ft²
4 bedroom semi-detached house for sale in The Crescent, Abbots Langley, WD5 0DS, WD5 — £660,000 • 4 bed • 2 bath • 1208 ft²






















































































