Compact, low-maintenance new home with garden and good local schools.
4-bedroom detached new build with 10-year NHBC warranty
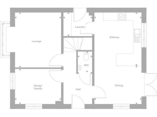
This newly built four-bedroom detached house on Woodhead Road combines contemporary living with family-focused layout. The ground floor opens to a modern kitchen/diner with French doors to the garden, a separate lounge with a feature bay window, a dedicated study and a laundry room — useful for family organisation. The principal bedroom benefits from an en-suite and there is a four-piece family bathroom serving the other bedrooms.
Built with energy efficiency and a 10-year NHBC warranty, the home promises lower running costs and reduced maintenance versus older properties. The plot is described as large and includes a single garage and private garden, providing outdoor space and parking essential for family life. Local amenities, good mobile signal and several highly rated primary and secondary schools are within easy reach.
Practical points to note: the overall internal floor area is compact (around 989 sq ft), so rooms are efficient rather than spacious. A modest annual service charge of £205.11 applies and there is a £500 reservation fee for pre-booking. Broadband speeds are average and the property sits in a very affluent area with average local crime statistics.
This house will suit buyers seeking a low-maintenance, modern family home in a well-regarded suburb. It’s best for those who value new-build guarantees, contemporary fixtures and easy outdoor access, while accepting compact internal living and limited garage parking.
4 bedroom detached house for sale in Woodhead Road,
Honley,
HD9 6PR, HD9 — £459,995 • 4 bed • 1 bath • 853 ft²
4 bedroom detached house for sale in Woodhead Road,
Honley,
HD9 6PR, HD9 — £464,995 • 4 bed • 1 bath • 927 ft²
4 bedroom detached house for sale in Woodhead Road,
Honley,
HD9 6PR, HD9 — £439,995 • 4 bed • 1 bath • 816 ft²
4 bedroom detached house for sale in Woodhead Road,
Honley,
HD9 6PR, HD9 — £479,995 • 4 bed • 1 bath • 755 ft²
3 bedroom detached house for sale in Woodhead Road,
Honley,
HD9 6PR, HD9 — £354,995 • 3 bed • 1 bath • 624 ft²
4 bedroom detached house for sale in Woodhead Road,
Honley,
HD9 6PR, HD9 — £474,995 • 4 bed • 1 bath • 755 ft²














































