Two bedroom chalet-style semi with principal first-floor suite
Newly renovated interior with timber flooring and neutral decor
Bespoke kitchen with Everhot 60 range and granite worktops
Large walk-in dressing; convertible to a third bedroom (sloped ceilings)
Tandem garage/workshop with utility plumbing and rear access
Block‑paved driveway for several vehicles; off‑street parking
Well‑stocked, landscaped rear garden; low-maintenance planting
One full bathroom only; compact bath/shower arrangement
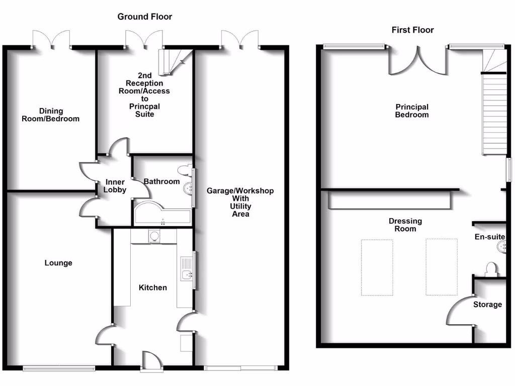
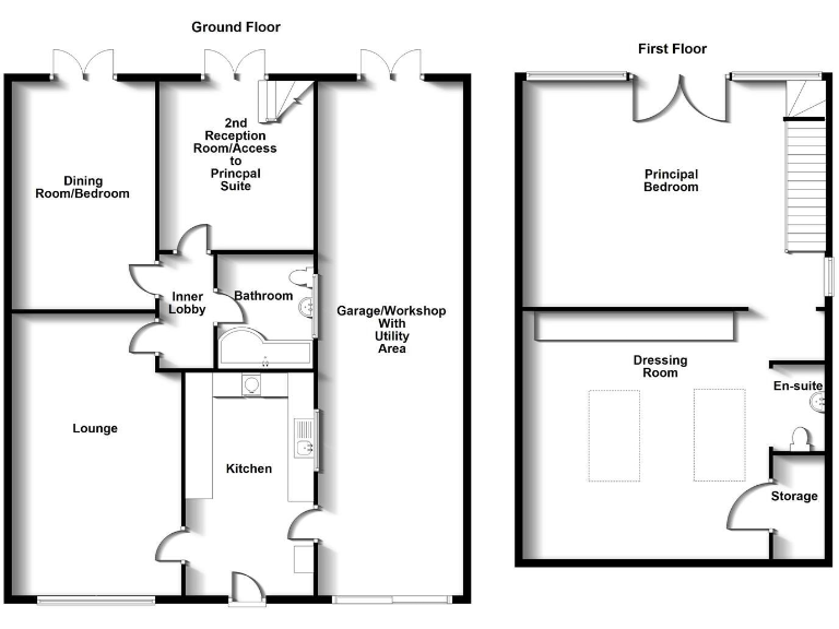
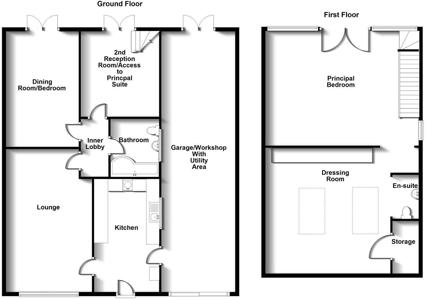
This well-presented semi‑detached chalet-style home blends modern finishes with mid‑century proportions, ideal for downsizers or small families seeking low-maintenance living in a quiet, affluent Rugby neighbourhood. The ground floor offers flexible living with a lounge, dining room/bedroom and a second reception that links to the landscaped rear garden. A bespoke kitchen with granite worktops and an Everhot 60 range cooker gives the heart of the house real character and everyday practicality.
Upstairs is a generous principal bedroom suite created in 2019, complete with Juliet balcony, en‑suite WC and a substantial walk‑in dressing area with Velux windows. That dressing room has scope to convert into a third bedroom if required, so the layout works for current downsizers and growing or visiting families alike. Practical additions include an extended tandem garage/workshop with utility plumbing, block‑paved driveway for several cars and useful storage throughout.
The property was newly renovated and presents in neutral, contemporary décor with timber flooring in principal rooms and an electric wall fire in the lounge. The rear garden is well stocked and landscaped for low maintenance outdoor living and entertaining. Council tax is affordable, there is no flood risk and local schools and amenities are close by in a very low‑crime area.
Notable points to accept before viewing: the main bathroom is compact and there is only one full bathroom plus separate WCs, so households needing multiple full bathrooms should allow for adaptation. Sloped ceilings in the dressing/loft area limit head height in parts of the first floor. While renovated, the property retains mid‑century construction and any buyer should satisfy themselves on services and exact room measurements during survey and inspection.



























































































