Chain-free central flat with parking and strong transport links.
Two double bedrooms with en suite to principal bedroom
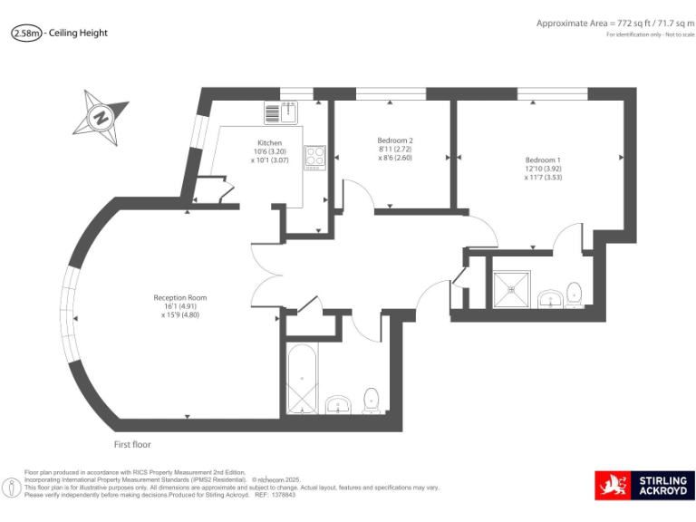
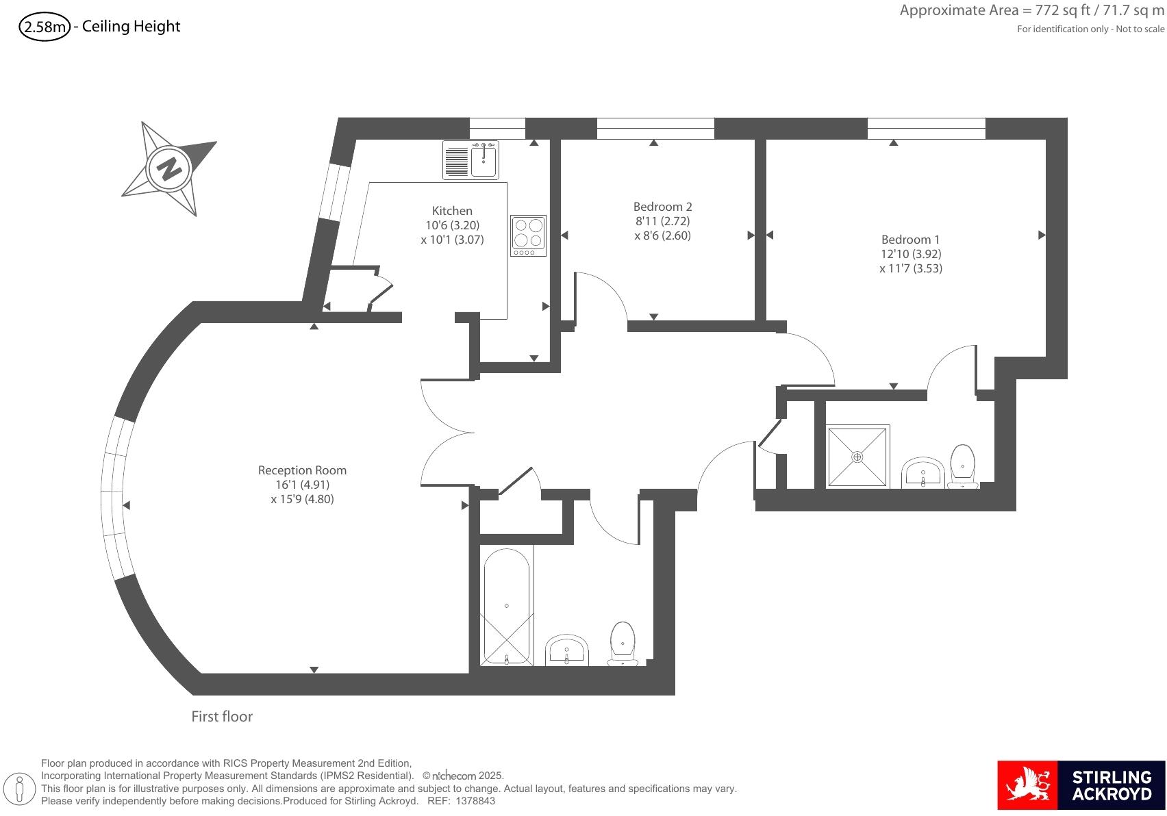
Bright, well-presented two double bedroom apartment on Bermondsey Street, a short walk from London Bridge and The Shard. The open-plan living/dining room benefits from large windows and timber flooring, creating a comfortable central London home for professionals or first-time buyers seeking immediate move-in condition. Secondary glazing, mains gas heating and secure allocated parking add practical value in this inner-city setting.
The principal bedroom includes an en suite shower room, with a separate white-tiled bathroom off the hallway and useful storage cupboard. At c.772 sq ft the layout feels spacious for SE1 and suits couples or sharers; finishes are contemporary and maintained, reducing upfront renovation work.
Buyers should note material facts: the property is leasehold with approximately 95–96 years remaining, an annual ground rent of £180 and service charges around £3,500 per year. Crime levels in the local area are relatively high, and there is no private garden. These factors affect running costs, mortgage considerations and suitability for some buyers.
Offered chain-free and close to extensive transport, dining and market amenities, the flat presents clear rental appeal and strong lifestyle advantages for those wanting central London living. It’s well suited to buyers prioritising location and convenience over outdoor space and long lease length.
2 bedroom apartment for sale in Griggs Place, London, SE1 — £490,000 • 2 bed • 1 bath • 560 ft²
2 bedroom apartment for sale in Bermondsey Street, London, SE1 — £575,000 • 2 bed • 1 bath • 650 ft²
2 bedroom apartment for sale in Leathermarket Court, London, SE1 — £585,000 • 2 bed • 1 bath • 679 ft²
2 bedroom flat for sale in Tower Bridge Road, London, SE1 — £645,000 • 2 bed • 2 bath • 735 ft²
2 bedroom apartment for sale in Bridge View Court, Grange Road, SE1 — £450,000 • 2 bed • 2 bath • 644 ft²
2 bedroom apartment for sale in City Walk, London, SE1 — £625,000 • 2 bed • 1 bath • 760 ft²










































































