N19 3RB - 2 bedroom flat for sale in Miranda Road, London, N19

View on Property Piper

2 bedroom flat for sale in Miranda Road, London, N19

Summary - 32A MIRANDA ROAD LONDON N19 3RB

2 bed 1 bath Flat

**Standout Features:**
- Newly renovated two-bedroom garden flat
- Private entrance and beautifully landscaped garden
- Powered and lined studio for versatile use
- Spacious open-plan reception and dining room with French doors
- Modern tiled bathroom with bath, shower, and additional storage
- Excellent Zone 2 transport links, walking distance to Archway and Upper Holloway stations

**Summary:**
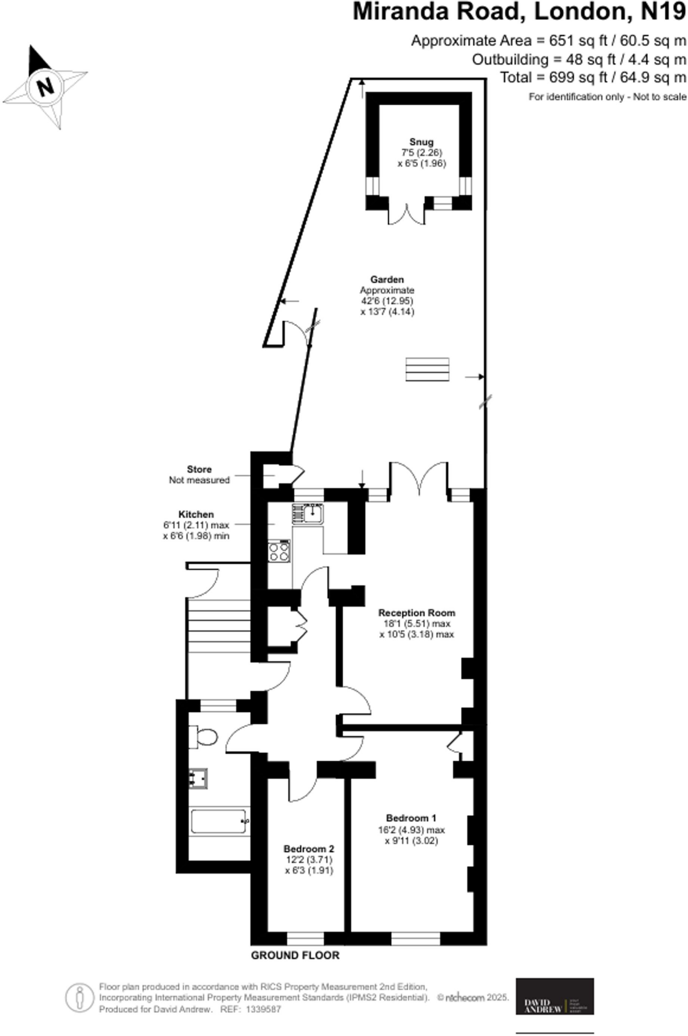
Discover this charming and newly renovated two-bedroom garden flat, perfect for first-time buyers or families seeking comfort and convenience in the heart of Whitehall Park. Spanning 699 sq ft (64.9 sqm), the property showcases a spacious open-plan reception area flooded with natural light, welcoming you through French doors to a beautifully landscaped garden—a perfect space for outdoor entertaining or relaxing in privacy.

The modern tiled bathroom is well-equipped with both a bath and a shower, complemented by ample storage throughout the flat. Enjoy a prime location nestled in a quiet, tree-lined street while benefiting from excellent transport links, with Archway underground station just a short stroll away. The vibrant surrounding community offers an abundance of shops, bars, and restaurants to explore. As an added advantage, this flat benefits from share of freehold tenure, providing potential for future renovations or extensions.

With renowned schools and parks nearby, this property represents a perfect blend of city living and family-friendly atmospheres. Don't miss out on this unique opportunity—schedule your viewing today!

Property Details

Image Descriptions

Floorplan Description

Rooms

Textual Property Features

Detected Visual Features

EPC Details

Nearby Schools

Nearest Bars And Restaurants

,,,,}

Nearest General Shops

,,}

Nearest Grocery shops

,,}

Nearest Supermarkets

,,}

Nearest Religious buildings

,,}

Nearest Medical buildings

,,,}

Nearest Airports

,}

Nearest Leisure Facilities

,,,,}

Nearest Tourist attractions

,,}

Nearest Train stations

,,,,}

Nearest Bus stations and stops

,,,,}

Nearest Hotels

,,}

Tags

Local Market Stats

AirBnB Data

Meta

High Res Images

Compatible Images

Low res Images

Thumbnails

Raw Images

High Res Floorplan Images

Compatible Floorplan Images

Low res Floorplan Images

FloorplanImages Thumbnail

Raw Floorplan Images