**Standout Features:**
- One-bedroom ground floor flat in a central Scarborough location
- Modern finish with UPVC double glazing and electric heating
- Chain-free sale with a long lease (984 years remaining)
- Open plan kitchen and dining area with integrated appliances
- Close to North Bay, local amenities, and transportation links
**Concerns:**
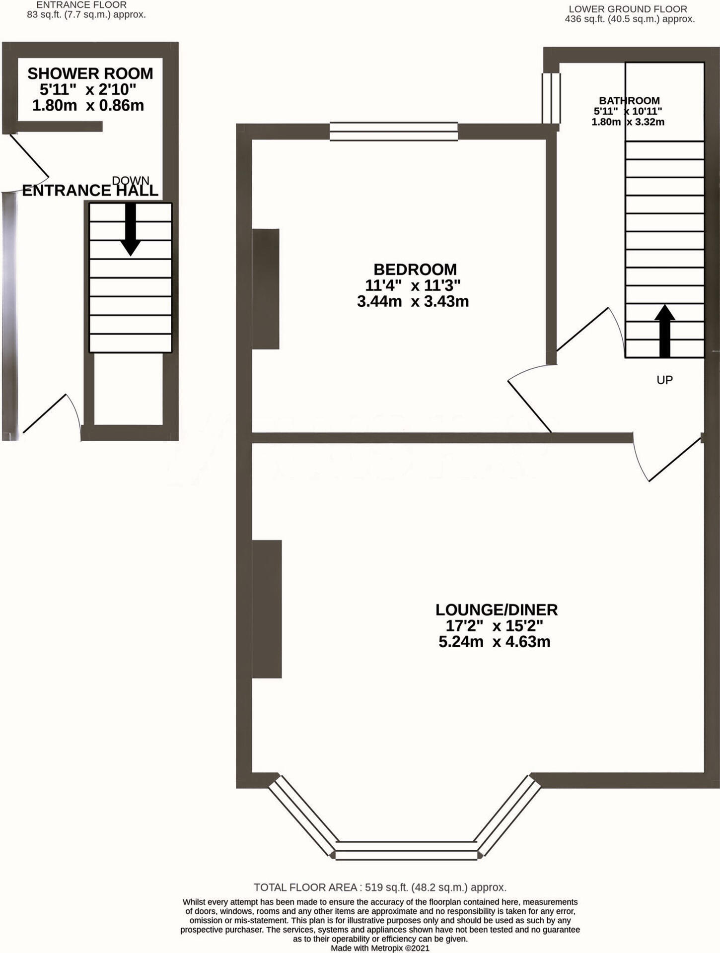
- Small overall size (409 sq. ft.) may limit some buyers
- High local crime rate, which could influence perception of safety
- Area marked as very deprived, indicating economic challenges
This well-presented one-bedroom ground floor apartment, offered with no onward chain, is perfectly positioned in the heart of Scarborough. Ideal for first-time buyers, downsizers, or as a second home, it features a bright and spacious bay fronted lounge integrated with a modern kitchen. The apartment offers a comfortable double bedroom and a stylish three-piece bathroom, ensuring convenience in a compact layout.
Enjoy the benefits of being just a stroll away from the scenic North Bay and a variety of local shops, supermarkets, and eateries. The property benefits from excellent mobile signal and fast broadband speeds, making it suited for modern living. Although the area has a reputation for high crime and is marked as economically deprived, the potential for a delightful beachside lifestyle is evident. This is a fantastic opportunity to secure a central, low-maintenance property in an evolving neighborhood. Schedule an internal viewing today and seize this attractive bargain at only £60,000 before it's gone!



























