Chain-free detached home with garden and parking — lease under 70 years, likely cash purchase.
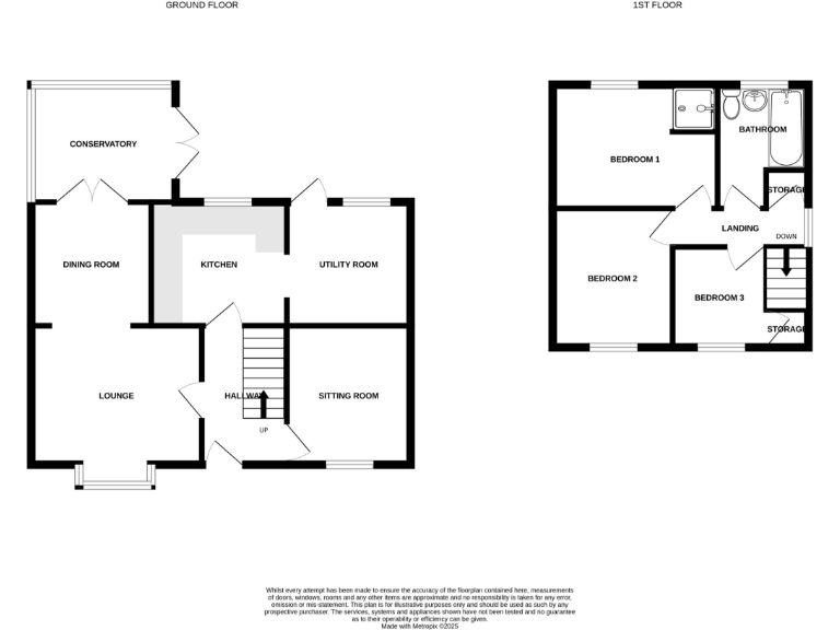
Three-bedroom detached house with four reception rooms
A three-bedroom detached house in a quiet cul-de-sac, set across two floors with four reception rooms and a private rear garden. The layout includes a lounge, dining room, conservatory, sitting room, kitchen with adjoining utility, and three bedrooms with a family bathroom. Off-street parking and a lawned front garden add practical curb appeal.
The property is chain-free and conveniently placed for local shops, schools, transport links and the M4, making it suitable for buyers wanting quick access to Neath and surrounding areas. The house is solidly constructed but shows signs of 1970s–1990s-era fittings and some dated finishes, so it will reward buyers prepared to modernise.
Important tenure detail: the flat lease has 62 years remaining and ground rent is £35 every six months. This is likely to restrict mortgage lending and may limit the pool of buyers to cash purchasers or specialist lenders. Any buyer should seek mortgage advice and legal confirmation about lease implications before committing.
Overall this detached home offers spacious family accommodation and renovation potential in a comfortable suburbia location. It suits buyers who can manage the lease constraints, want immediate occupation with no onward chain, and are prepared to update interior finishes to increase value.
3 bedroom semi-detached house for sale in Goshen Park, Skewen, Neath, SA10 6PT, SA10 — £210,000 • 3 bed • 1 bath • 861 ft²
3 bedroom end of terrace house for sale in Lucy Road, Skewen, Neath, Neath Port Talbot, SA10 — £145,000 • 3 bed • 1 bath
3 bedroom detached house for sale in The Meadows, Skewen, Neath, SA10 6SJ, SA10 — £275,000 • 3 bed • 2 bath • 1124 ft²
3 bedroom semi-detached house for sale in Cae Morfa, Skewen, Neath, SA10 — £230,000 • 3 bed • 2 bath • 672 ft²
3 bedroom semi-detached house for sale in Cae Morfa, Neath, SA10 — £230,000 • 3 bed • 3 bath • 640 ft²
3 bedroom semi-detached house for sale in Parkway, Sketty, Swansea, City And County of Swansea., SA2 — £239,995 • 3 bed • 1 bath • 881 ft²










































































