SW6 5EA - 2 bed victorian ground flat in Burnfoot Avenue, SW6 5EA

View on Property Piper

2 bedroom flat for sale in Burnfoot Avenue, London, SW6

Summary - Flat Ground Floor, 68 Burnfoot Avenue SW6 5EA

2 bed 1 bath Flat

Period charm with garden and storage, ideal for first-time buyers.
South-facing private garden, good natural light
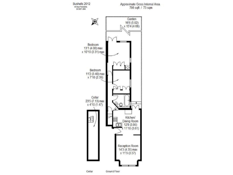
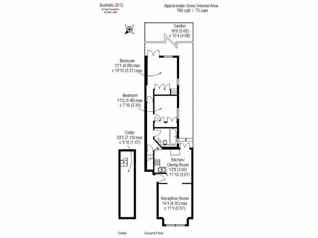
Approximately 786 sq ft of internal living space
Victorian features: bay window, fireplace, cornice
Cellar/utility provides useful storage
One bathroom only—suitable for small households
Leasehold with 107 years remaining
Ground rent £100 per year
Mains gas boiler and radiator heating
Set on a tree-lined Fulham avenue, this ground-floor Victorian flat pairs period character with practical living. The reception room keeps original features—fireplace, cornice and bay window—creating a welcoming main living space. Two well-proportioned bedrooms and a single bathroom suit a small family or professional couple.

At about 786 sq ft the layout is efficient: kitchen adjacent to a generous reception, plus a cellar/utility for extra storage. A south-facing rear garden provides private outdoor space and good natural light. The building’s mid-terrace position and pastel facade give the home clear street appeal.

The home is leasehold with 107 years remaining and a modest £100 ground rent; council tax is moderate. Mains gas heating runs via a boiler and radiators. Broadband and mobile signals are strong and local amenities, transport and several highly rated schools are within easy reach.

This property offers a blend of period charm, outdoor space and central Fulham convenience — a practical purchase for first-time buyers or a small household seeking immediate occupation and scope to personalise.

Property Details

Brochure Descriptions

Image Descriptions

Floorplan Description

Rooms

Textual Property Features

Target Audience

AI Tags

Detected Visual Features

EPC Details

Nearby Schools

Nearest Bars And Restaurants

,,,,}

Nearest General Shops

,,}

Nearest Grocery shops

,,}

Nearest Supermarkets

,,}

Nearest Religious buildings

,,}

Nearest Medical buildings

,,,}

Nearest Airports

,,}

Nearest Leisure Facilities

,,,,}

Nearest Tourist attractions

,,}

Nearest Train stations

,,,,}

Nearest Bus stations and stops

,,,,}

Nearest Hotels

,,}

Tags

Local Market Stats

AirBnB Data

Similar Properties

Meta

High Res Images

Compatible Images

Low res Images

Thumbnails

Raw Images

High Res Floorplan Images

Compatible Floorplan Images

Low res Floorplan Images

FloorplanImages Thumbnail

Raw Floorplan Images