**Standout Features:**
- Two double bedrooms perfect for couples or small families
- Extended ground floor layout for added spaciousness
- Off-street parking available at the rear
- Located in the desirable Pilgrims Hatch area with excellent schools nearby
- Easy access to Brentwood High Street and station
- Generous garden with a patio area, ideal for outdoor living
- Property requires modernization, presenting a renovation opportunity
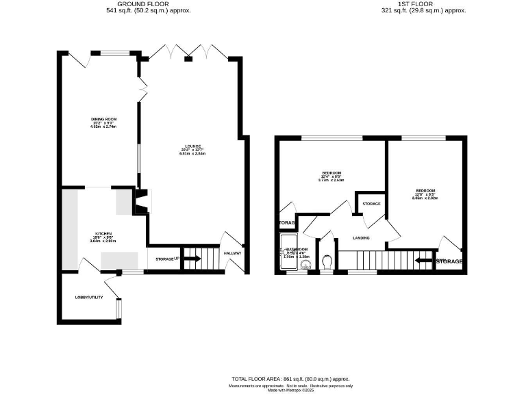
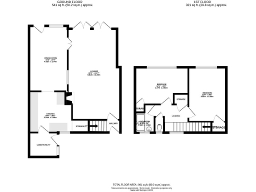
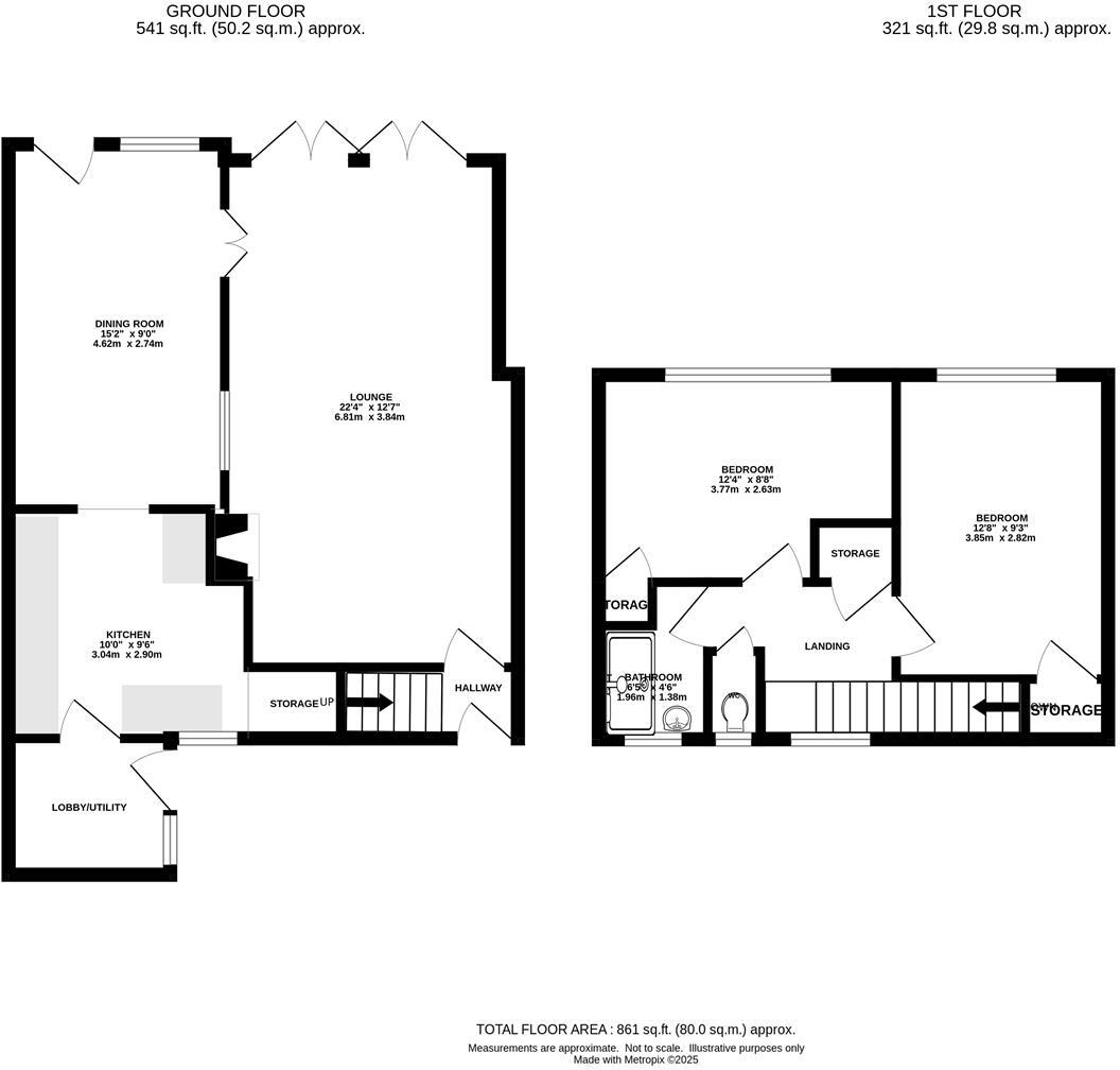
This charming mid-terrace home on Balmoral Road presents an excellent opportunity for buyers seeking to infuse their personal style into a cozy dwelling. With its two spacious double bedrooms and an inviting layout that includes a spacious lounge and a functional kitchen, the property offers comfortable living for small families or first-time buyers. While it requires some modernization, this is a chance to create your dream home in a family-friendly neighborhood known for its highly regarded schools and proximity to local amenities and parks.
The spacious ground floor features bi-folding doors that seamlessly connect the lounge to the garden, perfect for entertaining or enjoying quiet evenings outdoors. A neat rear garden with a patio area enhances your outdoor experiences, while off-street parking adds convenience. Additionally, the surrounding area offers quick access to Brentwood High Street and excellent transport links to London, making it ideal for commuters.
This property embodies potential and comfort in a vibrant community—don't miss your chance to secure a home in such a sought-after location!
2 bedroom end of terrace house for sale in Cornwall Road, Pilgrims Hatch, Brentwood, CM15 — £425,000 • 2 bed • 1 bath • 1040 ft²
2 bedroom terraced house for sale in Clarence Road, Pilgrims Hatch, Brentwood, Essex, CM15 — £425,000 • 2 bed • 1 bath • 891 ft²
4 bedroom end of terrace house for sale in Porters Close, Brentwood, CM14 — £500,000 • 4 bed • 2 bath • 1375 ft²
2 bedroom semi-detached bungalow for sale in Pilgrims Close, Pilgrims Hatch, Brentwood, CM15 — £415,000 • 2 bed • 1 bath • 641 ft²
2 bedroom detached bungalow for sale in Orchard Lane, Pilgrims Hatch, Brentwood, CM15 — £550,000 • 2 bed • 2 bath • 909 ft²
2 bedroom end of terrace house for sale in Elizabeth Road, Pilgrims Hatch, Brentwood, CM15 — £390,000 • 2 bed • 1 bath • 905 ft²






























































