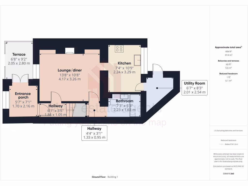
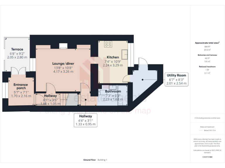
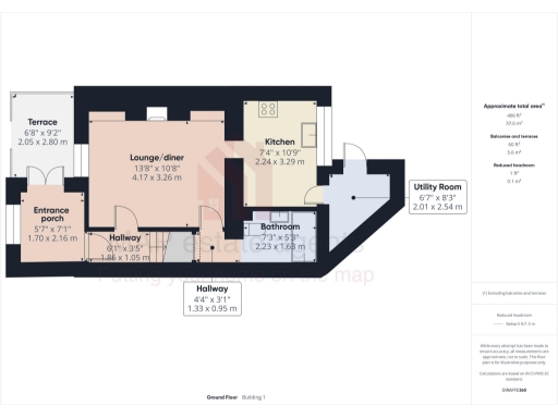
**Standout Features:**
- Characterful end-terrace cottage with a stone facade
- 2 average-sized bedrooms
- Ground floor bathroom
- Cozy lounge/diner with wood-burning stove
- Efficient electric air source heating
- Double glazing throughout
- Versatile outbuilding suitable for a home office
- Off-road parking for two cars
- Enclosed low-maintenance rear garden
- Paved front seating area with covered veranda
**Potential Downsides:**
- Small overall size (398 sq ft)
- Constructed before 1900, which may raise potential maintenance concerns
Discover the charm of this delightful end-terrace cottage in Four Lanes, Redruth. Perfect for first-time buyers or couples, it features a cozy lounge/diner equipped with a wood-burning stove, enhancing its warm and inviting atmosphere on colder nights. Two comfortable bedrooms and a conveniently located ground floor bathroom provide essential space and functionality. The property's electric air source heating and double glazing ensure efficient living, while the low-maintenance garden offers a tranquil retreat outdoors.
The appealing outbuilding, which is ideal for a home office, adds versatility to this property, making it perfect for those who work remotely. Off-road parking for two cars provides added convenience. Set in a peaceful village with a strong sense of community, you’ll find local amenities including a Post Office and primary schooling nearby. The thriving town of Redruth, offering access to the A30 and mainline Railway Station, is under three miles away, providing excellent connectivity. Don't miss your chance to own this charming, functional property nestled in a serene setting—arrange a viewing today to envision your new lifestyle!
2 bedroom cottage for sale in Lower Pengegon, Camborne - Semi-detached house, TR14 — £190,000 • 2 bed • 1 bath • 780 ft²
2 bedroom terraced house for sale in Praze, Camborne - Large rear garden, TR14 — £265,000 • 2 bed • 1 bath • 749 ft²
3 bedroom terraced house for sale in The Lane, TR16 — £248,000 • 3 bed • 1 bath • 926 ft²
2 bedroom terraced house for sale in Penhallick Row, Carn Brea, TR15 — £175,000 • 2 bed • 1 bath • 754 ft²
2 bedroom cottage for sale in Sparnon Gate, Redruth, TR16 — £269,950 • 2 bed • 1 bath • 702 ft²
4 bedroom house for sale in Rose Row, Redruth, TR15 — £325,000 • 4 bed • 1 bath • 1114 ft²






















































