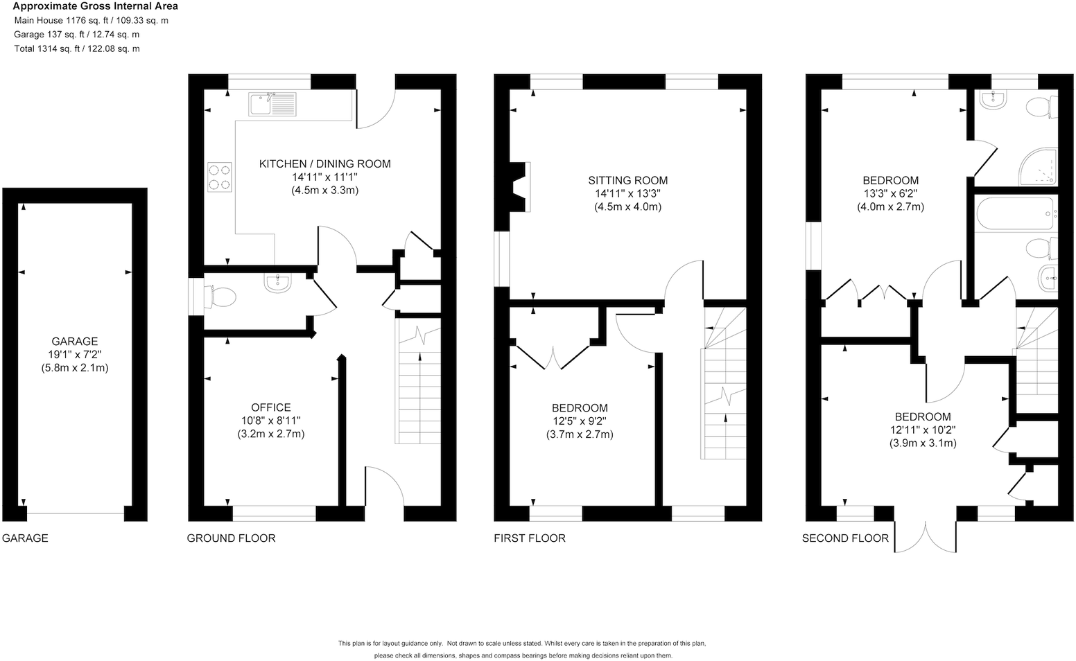
**Standout Features:**
- Quiet residential location on a no-through road
- Ideal home office space
- Kitchen/breakfast room with modern appliances
- Three bedrooms, including en-suite to master
- West-facing rear garden with ample sunlight
- Garage and additional parking available
- Proximity to Bolnore Village School and local amenities
Nestled in the serene Bolnore Village, this end-of-terrace, freehold modern townhouse is perfect for families or first-time buyers seeking work-life balance. Featuring three well-designed bedrooms across three levels, the property boasts a spacious home office—ideal for remote work. The generously sized kitchen/breakfast room shines with integrated appliances and a light-filled ambiance, flowing through to a west-facing garden, striving for sunlight and ease of maintenance.
The flexible layout continues with a bright sitting room on the first floor, complemented by a cozy electric fire. The master bedroom on the second floor provides lovely views and an en-suite, while the second bedroom features a charming Juliette balcony. Though the property is in good condition, the small annual service charge of £320 offers peace of mind for maintenance obligations.
Location is everything, and with Bolnore Village School just a short walk away, plus the vibrant local community center hosting diverse events, this home presents an exceptional family-friendly atmosphere. With Haywards Heath train station within 1.5 miles, commuting to London and Brighton is made easy. Act quickly; homes in this desirable area tend to move fast!
4 bedroom terraced house for sale in Pierces Lane, Haywards Heath, West Sussex, RH16 — £500,000 • 4 bed • 3 bath • 1287 ft²
5 bedroom end of terrace house for sale in Hawthorn Place, Haywards Heath, RH16 — £495,000 • 5 bed • 3 bath • 1015 ft²
5 bedroom end of terrace house for sale in Lower Village, Haywards Heath, RH16 — £550,000 • 5 bed • 3 bath • 1693 ft²
3 bedroom detached house for sale in Chandlers Field Drive, Haywards Heath, West Sussex, RH16 — £475,000 • 3 bed • 2 bath • 1099 ft²
3 bedroom semi-detached house for sale in Renfields, Haywards Heath, RH16 — £550,000 • 3 bed • 3 bath • 1423 ft²
4 bedroom detached house for sale in Little Pithfield, Haywards Heath, RH16 — £600,000 • 4 bed • 2 bath • 1505 ft²






















































































