**Standout Features:**
- Newly renovated semi-detached family home in Grimoldby
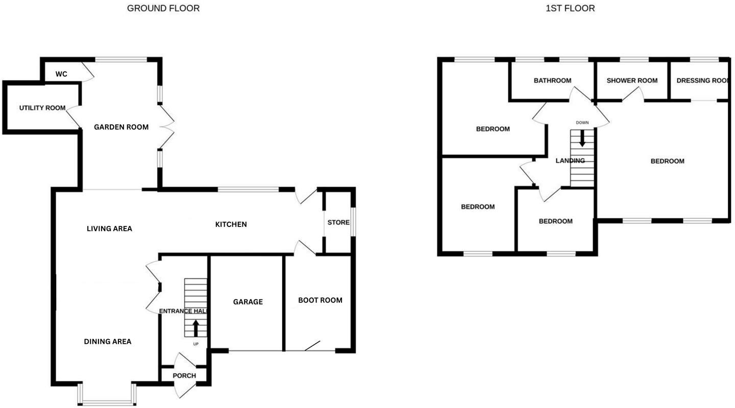
- Spacious open-plan kitchen/living area
- Four bedrooms including a large master with en-suite and walk-in wardrobe
- Attractively landscaped rear garden with patio ideal for entertaining
- Off-road parking and garage
- Chain-free sale with affordable council tax band
**Summary:**
Discover comfort and style in this beautifully renovated semi-detached family home located in the sought-after village of Grimoldby. With four well-sized bedrooms, a luxurious master suite boasting an en-suite and walk-in wardrobe, and an inviting open-plan living space perfect for family gatherings, this property is designed for modern family life. The well-maintained exterior features a sizable driveway and a tranquil garden, providing ample outdoor space for relaxation and summer entertaining.
Positioned conveniently within a dynamic community, residents have access to local amenities including schools, shops, and picturesque rural pathways. Plus, the attractive pricing at £310,000 in an affluent area offers superb value. This property is move-in ready, making it an ideal opportunity for families seeking their forever home or investors looking for rental potential. Act swiftly as such a gem in Grimoldby won't last long!
3 bedroom semi-detached house for sale in St. Edith Gate, Grimoldby, LN11 — £215,000 • 3 bed • 1 bath • 940 ft²
4 bedroom detached house for sale in Tinkle Street, Grimoldby, Louth, LN11 — £435,000 • 4 bed • 3 bath • 1649 ft²
3 bedroom semi-detached house for sale in Gladiator Road, Grimoldby, Louth, LN11 — £170,000 • 3 bed • 1 bath • 988 ft²
3 bedroom semi-detached house for sale in St Ediths Gate, Grimoldby , LN11 — £199,950 • 3 bed • 1 bath • 1085 ft²
4 bedroom detached house for sale in Tinkle Street, Grimoldby, LN11 — £463,500 • 4 bed • 2 bath • 2625 ft²
3 bedroom semi-detached house for sale in Fury Avenue, Grimoldby, LN11 — £175,000 • 3 bed • 1 bath










































































































