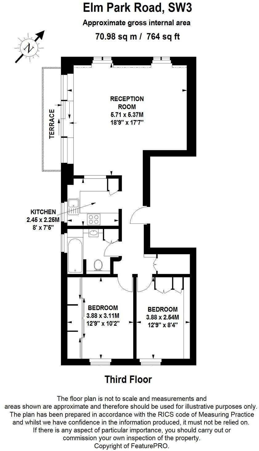
Newly renovated two-bedroom Chelsea flat with private west-facing terrace and modern finishes..
West-facing private terrace with double sliding doors
Recently renovated throughout with Brazilian walnut wooden floors
Top-floor flat offering privacy and good natural light
Two bedrooms; second doubles as study or guest room
One fully tiled bathroom with bath and stand-in shower
Leasehold: 116 years remaining — not freehold
Service charge approx £1,428; council tax described expensive
Local recorded crime level is higher than average
Set on Elm Park Road in Chelsea, this recently renovated two-bedroom flat offers bright, contemporary living with an attractive west-facing private terrace. The reception and dining rooms feature Brazilian walnut wooden floors and a semi-open plan layout via a kitchen feeding hatch, creating flexible space for daily life and entertaining.
The principal bedroom includes mirrored sliding wardrobes; a second bedroom works well as a guest room or home office. The bathroom is fully tiled with both a bathtub and a stand-in shower. At about 764 sq ft (70.98 sqm), the apartment provides a comfortably sized layout for central London living.
Practical details: the property is leasehold with 116 years remaining, a service charge averaging £1,428, and council tax described as quite expensive. The local area is affluent and family-oriented with several highly rated schools nearby, excellent mobile signal and fast broadband — ideal for remote working and family life.
Buyers should note a higher-than-average local crime level recorded for the area. Overall, the flat’s recent high-standard renovation, private terrace and prime Chelsea location close to King’s Road make it a strong option for families or professionals seeking turnkey central London accommodation, provided they are comfortable with leasehold tenure and ongoing service/council costs.
2 bedroom flat for sale in Elm Park Road, London, SW3 — £1,150,000 • 2 bed • 1 bath • 702 ft²
2 bedroom flat for sale in Fulham Road,
Chelsea, SW10 — £550,000 • 2 bed • 1 bath • 544 ft²
2 bedroom apartment for sale in Finborough Road, Chelsea, London, SW10 — £595,000 • 2 bed • 1 bath • 626 ft²
2 bedroom flat for sale in Elystan Place, Chelsea, SW3 — £1,650,000 • 2 bed • 2 bath • 1015 ft²
2 bedroom flat for sale in Elm Park Road,
Cremorne Estate, SW3 — £1,495,000 • 2 bed • 2 bath • 950 ft²
2 bedroom flat for sale in Elm Park Mansions, Park Walk, Chelsea, London, SW10 — £950,000 • 2 bed • 1 bath • 670 ft²






























