**Standout Features:**
- Elevated lodge with stunning River Lowther views
- 2 bedrooms, including a master ensuite
- Modern veranda with outdoor space
- Recently renovated interiors
- Off-street parking for two vehicles
- Located within Lowther Holiday Park with extensive amenities
**Potential Concerns:**
- Leasehold property with only 22 years remaining, affecting mortgage options
- Service charge of approximately £3,900 per year
- Broadband speeds are very slow
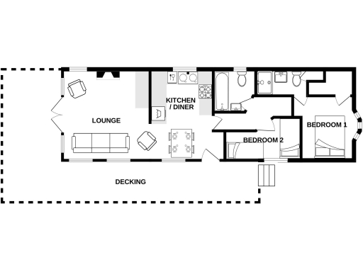
Nestled within the beautiful Lowther Holiday Park, this recently renovated 2-bedroom lodge offers an idyllic retreat with breathtaking views of the River Lowther. Experience serene living in this elevated setting, just minutes from the vibrant town of Penrith and the stunning landscapes of the Lake District National Park. The lodge features a cozy lounge with direct access to a modern decking area, perfect for relaxation and enjoying nature, alongside a fully equipped kitchen-diner.
The main bedroom boasts built-in storage and an ensuite shower room, while the second bedroom can comfortably accommodate twin beds. Ideal for families or as a rental investment, this lodge is well-maintained and available with many furnishings if desired. Although the property is leasehold with 22 years remaining—potentially complicating financing—it remains a fantastic opportunity for those looking to embrace a holiday lifestyle amidst an affluent and peaceful community. Viewing is highly recommended to truly appreciate the comfort and exclusivity of this unique getaway. Time is of the essence—don’t miss your chance to make this picturesque lodge your own!
2 bedroom lodge for sale in Eamont Bridge, CA10 — £85,000 • 2 bed • 1 bath
2 bedroom lodge for sale in Private Sale - 266 Lowther Holiday Park, Eamont Bridge, CA10 2JB, CA10 — £130,000 • 2 bed • 2 bath • 777 ft²
2 bedroom detached house for sale in Derwentwater 190, Hillcroft Park, Pooley Bridge, Penrith, Cumbria, CA10 — £140,000 • 2 bed • 2 bath
2 bedroom detached house for sale in Bassenthwaite 72, Hillcroft Park, Pooley Bridge, Penrith, Cumbria, CA10 — £69,995 • 2 bed • 1 bath
2 bedroom lodge for sale in Great Salkeld , Cumbria, CA11 9NA, CA11 — £220,000 • 2 bed • 1 bath
2 bedroom lodge for sale in 18 Lowther Holiday Park, Eamont Bridge, Penrith, CA10 2JB, CA10 — £44,995 • 2 bed • 1 bath


















































































