Spacious garden maisonette with external office and strong school links.
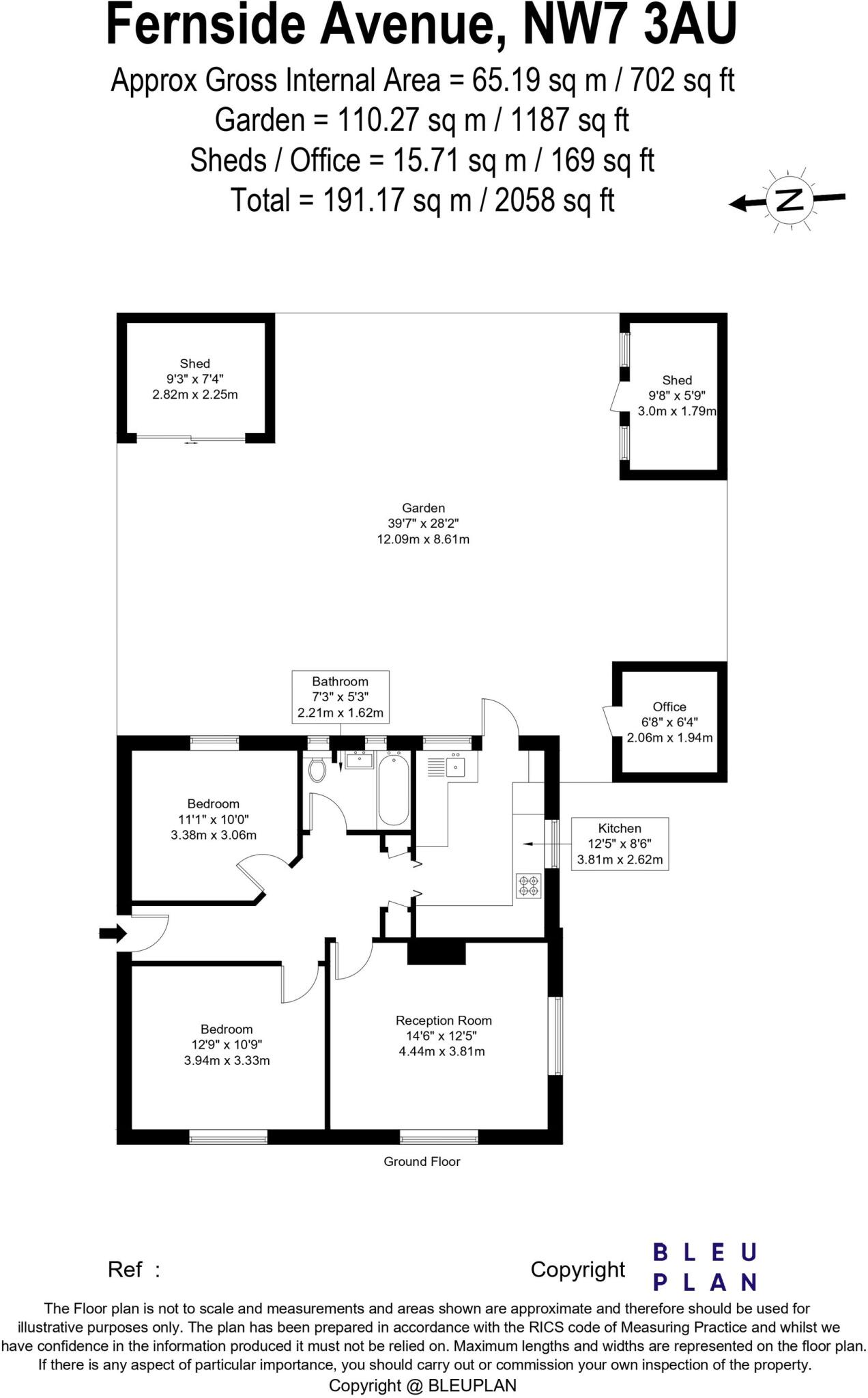
- Ground-floor two-bedroom maisonette, 702 sq ft internal area
- Large private garden with patio; external office and two sheds
- 97 years remaining on lease; leasehold tenure
- Low ground rent £10 p/a and service charge £840 p/a
- One fitted family bathroom only for two bedrooms
- EPC rating C; double glazing and mains gas central heating
- Good transport links to Mill Hill Broadway and Edgware stations
- Mid-century exterior may require periodic external upkeep
A bright two-bedroom ground-floor maisonette that suits growing families and professionals seeking outdoor space and easy commuting. The reception and fitted kitchen open onto a generous patio garden, and two double bedrooms provide comfortable sleeping space. An external office and two sheds add genuine home-working and storage options.
Located under a mile from Mill Hill Broadway Thameslink and around 1.2 miles from Edgware Underground, the home offers straightforward links into central London. It sits within or close to strong school catchments including Mill Hill County High School and Courtland Primary School—appealing for families prioritising schooling.
Practical running costs are reasonable: a 97-year lease, low ground rent (£10 p/a) and below-average service charge (£840 p/a). The property has double glazing, mains gas central heating and an EPC rating of C. There is no recorded flooding risk and mobile and broadband connectivity are good.
Buyers should note this is a leasehold ground-floor maisonette with a single family bathroom and about 702 sq ft of internal space. The exterior is mid-20th-century brickwork which may need occasional upkeep; internal layout and fixtures are modern but some buyers may want further cosmetic updating. Overall, this is a comfortable, practical home with outdoor space and work-from-home amenities in a well-connected north London location.
1 bedroom maisonette for sale in Laleham Avenue, Mill Hill, London, NW7 — £300,000 • 1 bed • 1 bath • 589 ft²
2 bedroom maisonette for sale in Ground floor 2 bedroom flat on The Fairway, NW7 — £360,000 • 2 bed • 1 bath • 656 ft²
2 bedroom flat for sale in Milespit Hill, Mill Hill, London, NW7 — £375,000 • 2 bed • 1 bath • 687 ft²
2 bedroom flat for sale in Hale Lane, London, NW7 — £550,000 • 2 bed • 2 bath • 778 ft²
2 bedroom maisonette for sale in Bittacy Hill, London, NW7 — £425,000 • 2 bed • 1 bath • 654 ft²
2 bedroom flat for sale in Watford Way, London, NW4 — £375,000 • 2 bed • 1 bath • 645 ft²






































































