Spacious country home with private grounds and high-efficiency heating.
Four double bedrooms, three with en-suite shower rooms
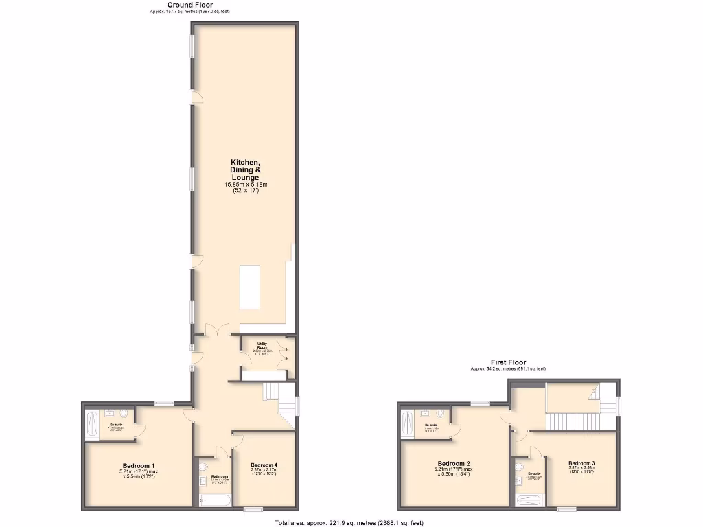
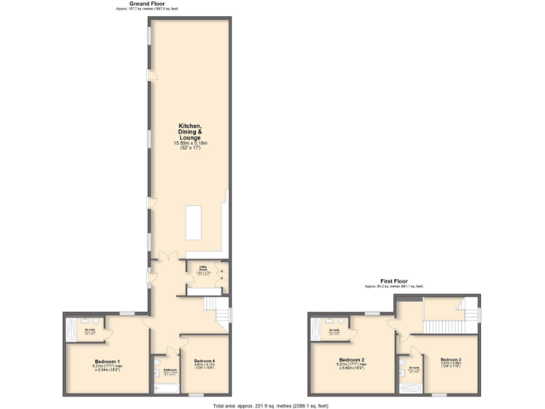
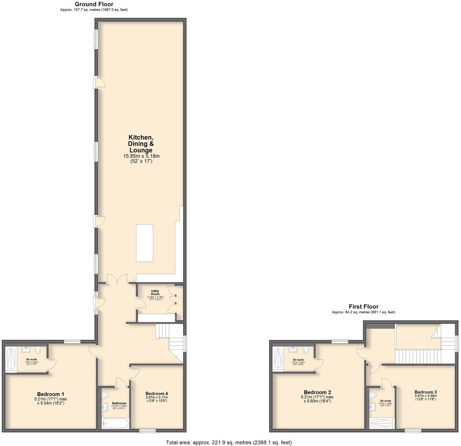
A striking four-bedroom barn conversion set within the restored Firbeck Hall estate, 31 The Stables combines period character with high-spec contemporary finishes. The heart of the home is a vast open-plan kitchen, living and dining area with a feature island, quartz worktops and integrated Siemens appliances. Dual-aspect principal suite and three further double bedrooms (three with en-suite shower rooms) offer flexible family living.
Practicality and comfort are strong selling points: energy-efficient ground source heating with underfloor distribution throughout, a separate utility room, double garage plus two private parking spaces and a designated visitor bay. The property includes a courtyard terrace and a west-facing lawn, and residents have exclusive access to 33 acres of private grounds and woodland walks.
This is a new-build, newly renovated home sold leasehold with 247 years remaining and comes with a six-year new-build warranty. Annual service charge is £3,868 and ground rent is nominal at £1. Buyers should note the wider area records above-average crime statistics and local deprivation indicators. Mobile and broadband speeds are average, which may affect remote working plans.
Ready to move into, the house suits families or buyers seeking country living with modern conveniences. The combination of generous living space, energy-efficient heating and expansive private grounds delivers a rare countryside lifestyle—balanced by the recurring costs and area-specific considerations outlined above.
4 bedroom barn conversion for sale in 32 The Stables, Firbeck Hall, Firbeck, S81 — £700,000 • 4 bed • 3 bath • 1958 ft²
2 bedroom detached house for sale in The Yews, Firbeck, Worksop, South Yorkshire, S81 — £400,000 • 2 bed • 2 bath • 1821 ft²
4 bedroom detached house for sale in Discover your dream home at High Oakham Park..., NG18 — £600,000 • 4 bed • 5 bath • 2334 ft²
5 bedroom barn conversion for sale in Discover the rural charm of The Stables at Castle Hill, S80 — £900,000 • 5 bed • 3 bath • 4492 ft²
4 bedroom mews property for sale in 20 The Mews Firbeck Hall - New Road, Firbeck S81 — £625,000 • 4 bed • 3 bath • 2129 ft²
6 bedroom barn conversion for sale in Retford Road, Blyth, Worksop, S81 — £1,000,000 • 6 bed • 6 bath • 7133 ft²


















































































