First-floor apartment with garage, garden and long lease in a popular school catchment.
Two double bedrooms with fitted wardrobes
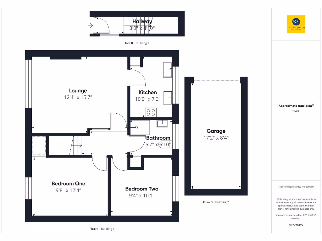
A well-presented two double bedroom first-floor flat in sought-after Lammack, offered with no onward chain. The apartment occupies a comfortable 724 sq ft and benefits from a detached single garage, a neatly maintained front garden and far-reaching views towards Mellor and Pendle Hill. The living room features a feature fireplace and space for dining; the kitchen has good storage and room for under-counter appliances.
The master bedroom includes fitted wardrobes and both bedrooms are genuine doubles. The shower room is contemporary with full-height tiling and the property has gas central heating via a boiler and uPVC double glazing throughout. EPC is rated C and the long lease (approximately 139 years remaining) makes the flat straightforward for mortgage purposes.
Practical positives include low local crime, excellent mobile signal and fast broadband speeds — useful for remote working. Local schools are strong, with several Ofsted ‘Good’ and one ‘Outstanding’ nearby, making the area popular with young families and first-time buyers.
Notable points to consider: this is a leasehold flat (long lease) and has a single bathroom only. Overall size is average for a two-bedroom apartment, and the building dates from the late 1970s/early 1980s, so buyers wanting a fully modern interior should allow for some updating. Internal viewing is recommended to appreciate the layout, garage and outlook.
3 bedroom detached house for sale in Kestrel Close, Blackburn, BB1 — £249,950 • 3 bed • 1 bath • 1009 ft²
3 bedroom semi-detached house for sale in Quebec Road, Blackburn, BB2 — £210,000 • 3 bed • 1 bath • 963 ft²
3 bedroom semi-detached house for sale in Kestrel Close, Blackburn, BB1 — £199,950 • 3 bed • 1 bath • 1076 ft²
2 bedroom semi-detached house for sale in Whinney Lane, Blackburn, BB2 — £180,000 • 2 bed • 1 bath • 737 ft²
3 bedroom semi-detached house for sale in Quebec Road, Blackburn, BB2 — £270,000 • 3 bed • 2 bath • 1204 ft²
3 bedroom semi-detached house for sale in Quebec Road, Blackburn, Lancashire, BB2 — £200,000 • 3 bed • 1 bath • 945 ft²














































