Ready first home with garage, parking and modern open-plan living.
Recently renovated throughout, ready to move in
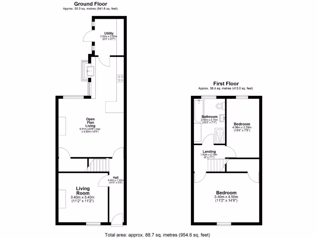
Recently renovated two-bedroom Victorian terrace with contemporary open-plan living and retained period character. The ground floor features a modern kitchen-diner with vaulted ceiling, wood-effect floors and a multifuel stove, plus a separate front reception room — a useful layout for flexible living. Upstairs are two double bedrooms and a four-piece bathroom, making this a ready-to-move-in option for first-time buyers or investors seeking low-immediate-maintenance accommodation.
Practical benefits include off-road parking, a private driveway and a detached single garage — rare for terraces in the area — plus fast broadband and excellent mobile signal. The property is set near local schools, sports facilities and public transport, suited to commuters and young families. Council tax band A helps running costs.
Important facts: tenure is listed as leasehold (buyer should verify terms) and there is no current EPC provided. Rooms are generally small-to-medium with standard ceiling heights, so buyers seeking very large internal volumes should note the footprint is modest at about 954 sq ft. Overall, this is a well-presented, affordable entry-level home in a comfortable suburban pocket of Burnley.
2 bedroom terraced house for sale in Gannow Lane, Burnley, BB12 — £95,000 • 2 bed • 1 bath • 758 ft²
2 bedroom terraced house for sale in Selby Street, Colne, Lancashire, BB8 — £179,950 • 2 bed • 1 bath • 851 ft²
2 bedroom terraced house for sale in Hornby Street, Burnley, BB11 — £65,000 • 2 bed • 1 bath • 733 ft²
2 bedroom terraced house for sale in Hobart Street, Burnley, Lancashire, BB11 — £65,000 • 2 bed • 1 bath • 672 ft²
2 bedroom terraced house for sale in Cog Lane, Burnley, Lancashire, BB11 — £89,950 • 2 bed • 1 bath • 685 ft²
2 bedroom terraced house for sale in Brockenhurst Street, Burnley, Lancashire, BB10 — £100,000 • 2 bed • 2 bath • 832 ft²


















































































































