Spacious period living with a huge private garden and chain-free sale.
Two double bedrooms with large master across the width of the house
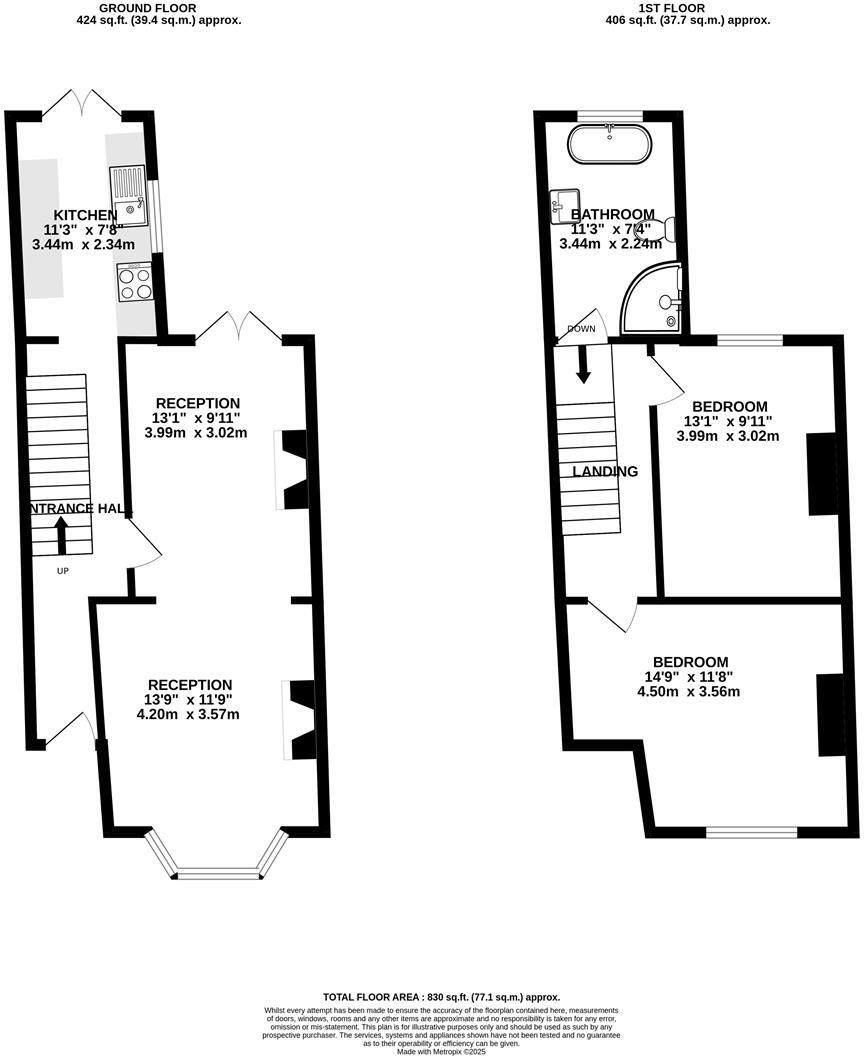
This Victorian two-bedroom terraced house sits directly opposite Eastville Park and offers generous living spaces across two floors. The front and rear reception rooms have been opened up into a light-filled open-plan living area with feature fireplaces and French doors leading out to the garden. A modern galley kitchen and a large four-piece bathroom add practical family convenience.
The rear garden is a standout asset — approximately 70ft, mainly lawn with a patio and a north-westerly aspect, offering strong potential for landscaping or extension (subject to consents). The property is offered chain free on freehold tenure, with good digital connectivity and quick access to the city centre via nearby cycle routes and public transport.
Buyers should note the area records higher-than-average crime and social deprivation; purchasers should review local safety data and take that into account. Externally the garden and rear elevation show some overgrowth and maintenance needs, and parts of the house would benefit from cosmetic updating. Overall, this is a spacious, well-located period home suited to families or buyers seeking refurbishment potential or a city-centre rental investment.
2 bedroom terraced house for sale in Gadshill Road, Eastville, Bristol, BS5 — £365,000 • 2 bed • 1 bath • 797 ft²
2 bedroom terraced house for sale in Herbert Crescent, Eastville, Bristol, BS5 — £325,000 • 2 bed • 1 bath • 864 ft²
2 bedroom terraced house for sale in Seaton Road, Bristol, BS5 — £375,000 • 2 bed • 1 bath • 813 ft²
2 bedroom terraced house for sale in Royate Hill, Eastville, BS5 — £375,000 • 2 bed • 1 bath • 1000 ft²
2 bedroom end of terrace house for sale in Marsh Lane, Bristol, BS5 — £342,500 • 2 bed • 1 bath • 771 ft²
3 bedroom terraced house for sale in Herbert Crescent, Bristol, BS5 — £275,000 • 3 bed • 1 bath • 839 ft²






























































