BD20 0JS - 3 bed stone built family home in Silsden, BD20 0JS

View on Property Piper

3 bedroom detached house for sale in Bolton Terrace, Silsden,, BD20

Summary - 18 Bolton Terrace, Silsden BD20 0JS

3 bed 1 bath Detached

Three-bedroom detached house with garage, private garden and no upper chain..
Chain free, stone-built detached house
Three bedrooms, one modern four-piece family bathroom
Newly renovated interior; move-in ready condition
Single garage with block-paved private driveway parking
Delightful enclosed rear garden, flagged patio and borders
Mains gas boiler and radiators; double glazing (install date unknown)
Excellent mobile signal and fast broadband for home working
Single bathroom may limit larger families or multiple occupants
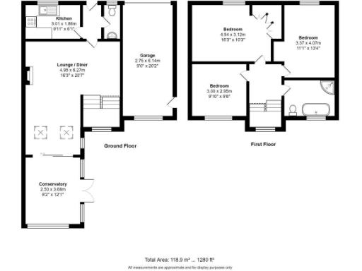
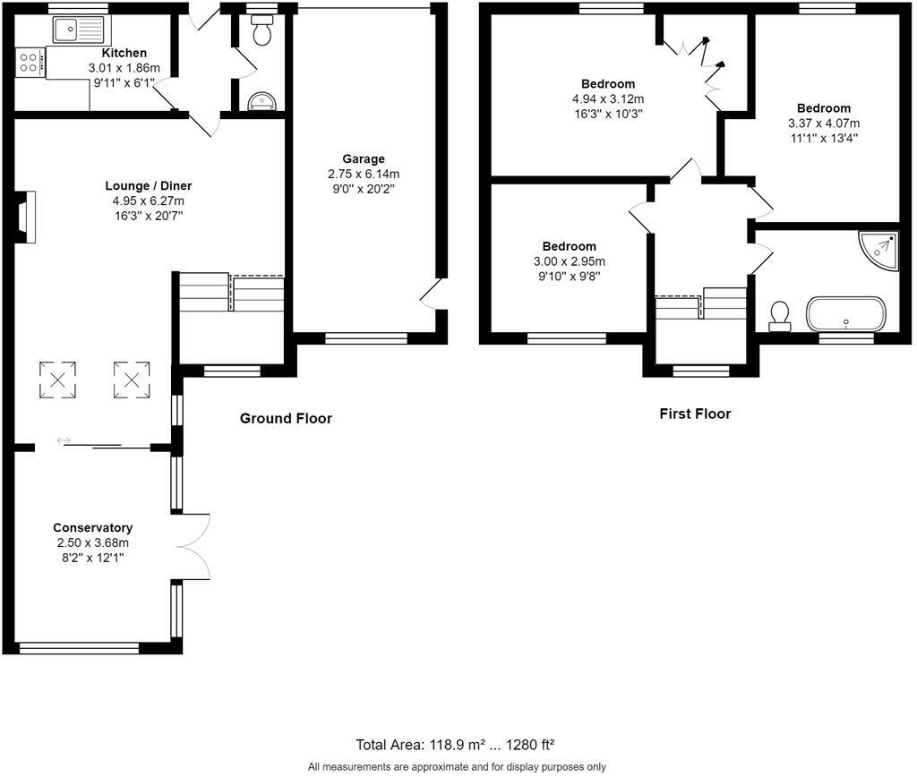
This stone-built, three-bedroom detached house in Silsden offers a comfortable family layout with modern finishes and no upper chain. The ground floor has a bright sitting room opening to a dining area and conservatory, plus a contemporary kitchen and a cloakroom, while three first-floor bedrooms share a stylish four-piece bathroom. The property has been renovated and is presented ready to move into.

Outside, the plot includes a block-paved driveway, single garage and a well-enclosed rear garden with flagged patio, pebbled areas and raised flower borders — a private, low-maintenance space for children and entertaining. The location is practical for families: Silsden Primary is on your doorstep, other well-rated schools nearby, local shops and Steeton station within easy reach for commuters.

Practical details to note: the house is freehold and chain-free, with mains gas central heating and double glazing (installation date unknown). There is a single family bathroom and single garage, which may be limiting for larger families. Broadband and mobile signals are strong, and the area is generally affluent with moderate council tax.

Property Details

Brochure Descriptions

Image Descriptions

Floorplan Description

Rooms

Textual Property Features

Target Audience

AI Tags

Detected Visual Features

EPC Details

Nearby Schools

Nearest Bars And Restaurants

,,,,}

Nearest General Shops

,,}

Nearest Grocery shops

,,}

Nearest Supermarkets

,,}

Nearest Religious buildings

,,}

Nearest Medical buildings

,,,}

Nearest Airports

}

Nearest Leisure Facilities

,,,,}

Nearest Tourist attractions

,,}

Nearest Train stations

,,,,}

Nearest Bus stations and stops

,,,,}

Nearest Hotels

,,}

Tags

Local Market Stats

AirBnB Data

Similar Properties

Meta

High Res Images

Compatible Images

Low res Images

Thumbnails

Raw Images

High Res Floorplan Images

Compatible Floorplan Images

Low res Floorplan Images

FloorplanImages Thumbnail

Raw Floorplan Images