**Standout Features:**
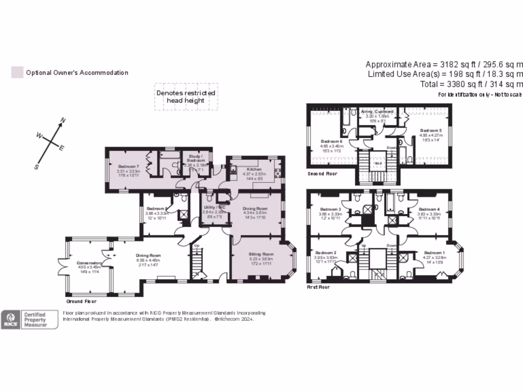
- **9 Bedrooms**: 8 with ensuite bathrooms, perfect for a guesthouse or spacious family living.
- **4 Reception Rooms**: Offering flexible living arrangements, including potential self-contained owner's accommodations.
- **South West Facing Gardens**: Ideal for outdoor relaxation and entertaining, featuring terraces and a summerhouse.
- **Income Opportunity**: Previously operated as a successful bed & breakfast, with potential for further business development.
- **Prominent Location**: Close proximity to West Bay and picturesque beaches with coastal and country views.
**Potential Downsides:**
- **Current Trading Levels**: Reduced since 2015, with the need for revitalization to capitalize on its full income potential.
- **Maintenance Needs**: While well-presented, future adjustments may be required for personalized updates or renovations.
Discover the expansive elegance of Britmead House, a stunning Edwardian detached property nestled on serene West Bay Road in Bridport. With nine generously sized bedrooms, including eight ensuites, along with multiple reception rooms, this versatile space stands out as both a potential family haven and a lucrative business opportunity. Currently configured for guest accommodations, the flexible layout can easily cater to large families or multigenerational living—a rarity in this sought-after area.
The beautiful south-west facing gardens are perfect for soaking up the sun, featuring inviting patios and a summerhouse to enjoy the countryside views. Located only a stone’s throw from the vibrant West Bay, the property offers easy access to beaches, shops, and local amenities, making it a prime spot for both living and leisurely escapes. With investor potential on the rise, this property invites those seeking a lifestyle change or a flourishing business opportunity in a tranquil yet engaging environment. Experience the size, charm, and possibilities that await at Britmead House—schedule your viewing today before this exclusive offering is gone!
9 bedroom guest house for sale in Britmead House, West Bay Road, Bridport, Dorset, DT6 — £895,000 • 9 bed • 10 bath • 3380 ft²
4 bedroom detached house for sale in Belfield Park Avenue, Weymouth, Dorset, DT4 — £800,000 • 4 bed • 3 bath • 2170 ft²
8 bedroom guest house for sale in Dorchester, Dorset, DT2 — £1,300,000 • 8 bed • 1 bath • 1483 ft²
11 bedroom house for sale in Dorchester, Dorset DT2 — £1,300,000 • 11 bed • 1 bath • 1483 ft²
21 bedroom detached house for sale in Hawkchurch, Axminster, EX13 — £1,500,000 • 21 bed • 20 bath • 10356 ft²
10 bedroom farm house for sale in Branscombe, Seaton, EX12 — £3,750,000 • 10 bed • 10 bath • 10656 ft²






















































































