GU28 0AB - 1 bed period high street retail in East Street, GU28 0AB

View on Property Piper

High street retail property for sale in Petworth, West Sussex, GU28

Summary - Petworth, West Sussex GU28 0AB

1 bed 1 bath Retail Property (high street)

Spacious character premises in a popular South Downs market town.
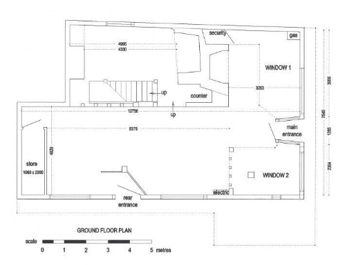
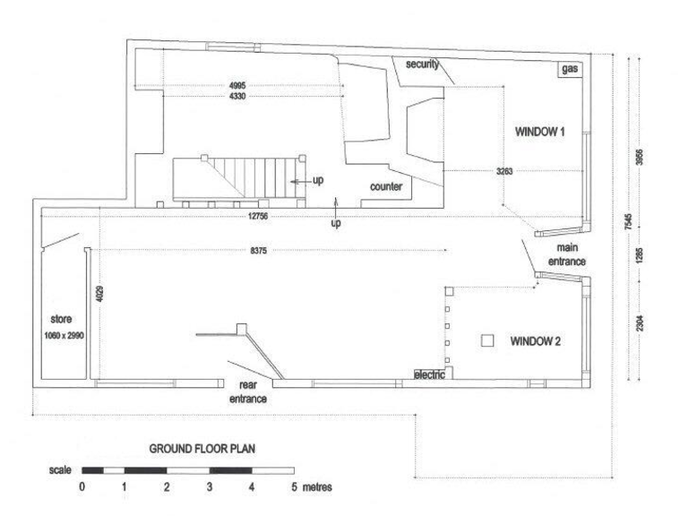
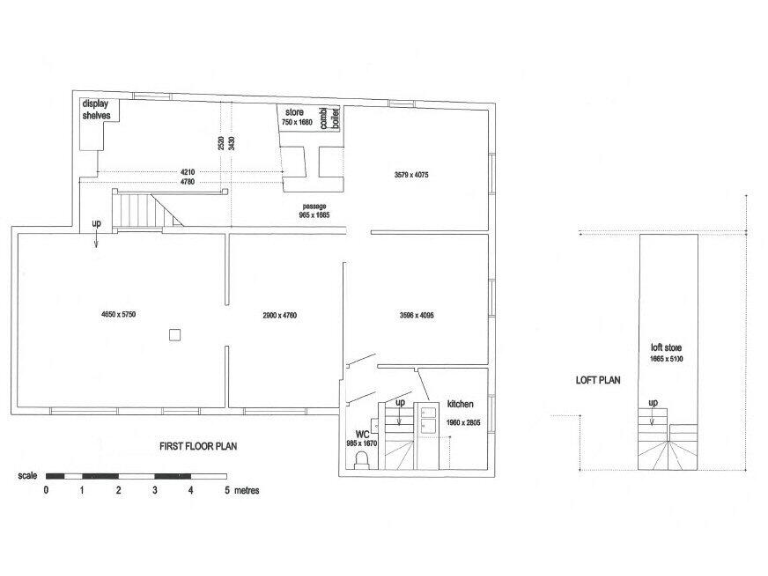
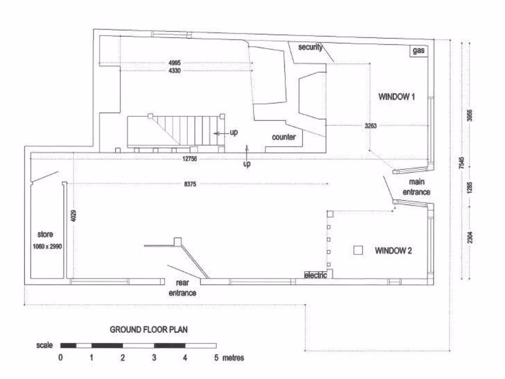
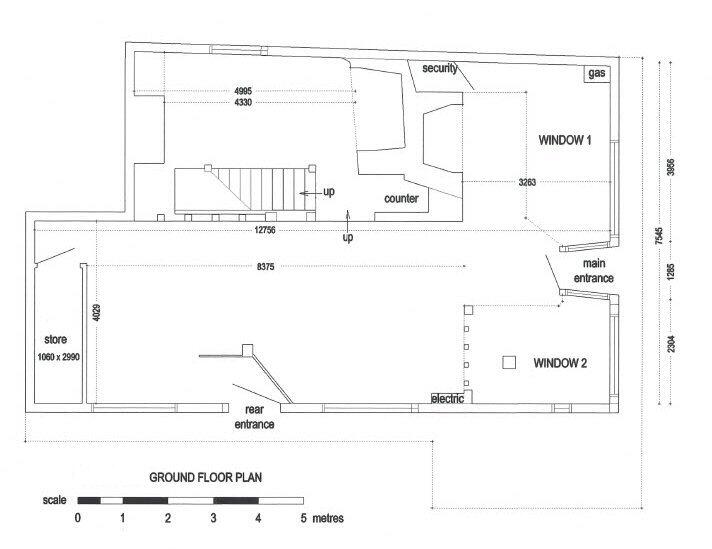
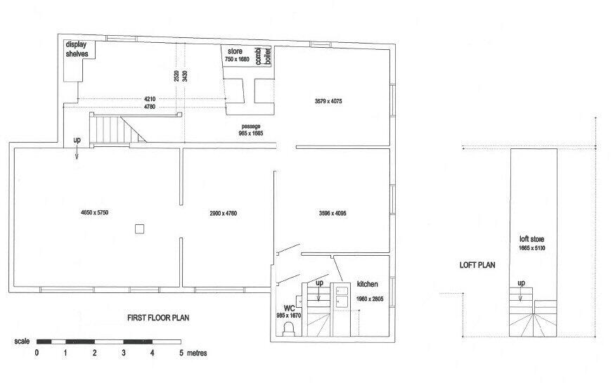
Freehold high-street retail premises, approx. 2,185 sq ft
A rare freehold opportunity on Petworth’s busy high street, this substantial period retail property offers 2,185 sq ft of adaptable space across two floors with standout character features. Exposed timber beams, inglenook fireplaces and generous window frontage on two sides give the premises instant trading presence and appeal to higher-end retail, gallery or destination food uses. Two entrances and a wide staircase make the layout flexible for separate retail and back-of-house operations.

The location within the South Downs National Park and close to Petworth House, festivals and quality independent traders brings steady footfall from local residents and visiting buyers. Size and position create clear reversionary value for an investor or owner-operator seeking long-term rental income or the potential for a mixed-use conversion, subject to planning consent.

Be realistic about practical works: the building dates from c.1900–1929 with solid brick walls and assumed lack of insulation, so thermal upgrades and mains services improvements may be needed. Plot is very small, so external expansion and on-site parking are limited. Business rates and other outgoings are not provided and should be checked before purchase.

Offered at £535,000 freehold, this is a characterful, large-footprint high-street unit in a proven tourist and weekend-buyer market. It suits investors seeking a long-lease retail asset with scope for refurbishment-driven value uplift, or an occupier who can capitalise on Petworth’s high-quality leisure and antiques trade.

Property Details

Image Descriptions

Rooms

Textual Property Features

Target Audience

AI Tags

Detected Visual Features

EPC Details

Nearby Schools

Nearest Bars And Restaurants

,,,,}

Nearest General Shops

,,}

Nearest Grocery shops

,,}

Nearest Supermarkets

,,}

Nearest Religious buildings

,,}

Nearest Medical buildings

,,,}

Nearest Airports

}

Nearest Leisure Facilities

,,,,}

Nearest Tourist attractions

,,}

Nearest Train stations

,,,,}

Nearest Bus stations and stops

,,,,}

Nearest Hotels

,,}

Tags

Local Market Stats

AirBnB Data

Similar Properties

Meta

High Res Images

Compatible Images

Low res Images

Thumbnails

Raw Images

High Res Floorplan Images

Compatible Floorplan Images

Low res Floorplan Images

FloorplanImages Thumbnail

Raw Floorplan Images