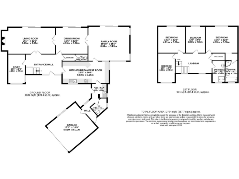
**Standout Features:**
- Four spacious bedrooms, including a principal suite with en-suite bathroom
- Large living room with inglenook fireplace, open to the garden
- Impressive breakfast kitchen with granite surfaces and integrated appliances
- Double garage with electric car charger
- Secluded south-facing garden with patio area and summer house
- Located in an exclusive cul-de-sac within Alderley Edge Village
- Over 2,700 sqft of living space
**Summary:**
Discover this exceptional four-bedroom detached home nestled in a quiet cul-de-sac in the heart of Alderley Edge Village. This expansive residence spans over 2,700 square feet and boasts a spacious layout, perfect for families seeking comfort and versatility. The impressive breakfast kitchen features contemporary granite worksurfaces and top-tier integrated appliances, seamlessly flowing into the elegant living room adorned with an inglenook fireplace and direct access to the secluded south-facing garden. Enjoy summer gatherings on the patio, or retreat to the cozy summer house for a peaceful escape.
Upstairs, you'll find a bright landing leading to the principal bedroom suite, three additional double bedrooms, and a well-appointed family bathroom. The meticulously maintained exterior includes a block-paved driveway with ample parking and a double garage equipped with an electric car charger.
Conveniently situated just a short walk from local amenities and the train station, this property not only offers a prime location but also the potential for future renovations or extensions. With outstanding local schools and a tranquil neighborhood, this home is an ideal investment for families or buyers looking for spacious living in an affluent community. Don’t miss this rare opportunity—properties in this exclusive cul-de-sac don’t stay on the market for long!
4 bedroom detached house for sale in West Bank, Alderley Edge, SK9 — £1,195,000 • 4 bed • 4 bath • 2359 ft²
5 bedroom detached house for sale in Oak Park, Alderley Edge, SK9 — £1,450,000 • 5 bed • 4 bath • 2590 ft²
5 bedroom detached house for sale in Buttermere Drive, Alderley Edge, SK9 — £995,000 • 5 bed • 4 bath • 2385 ft²
4 bedroom detached house for sale in Congleton Close, Alderley Edge, SK9 — £1,395,000 • 4 bed • 3 bath • 3400 ft²
4 bedroom detached house for sale in Meadscroft Drive, Alderley Edge, SK9 — £1,300,000 • 4 bed • 2 bath • 1692 ft²
4 bedroom detached house for sale in Oakfield Road, Alderley Edge, SK9 — £600,000 • 4 bed • 2 bath • 1508 ft²






































































