Low-maintenance two-bedroom living with strong communal facilities and coastal access.
- Purpose-built retirement apartment, over-60s development
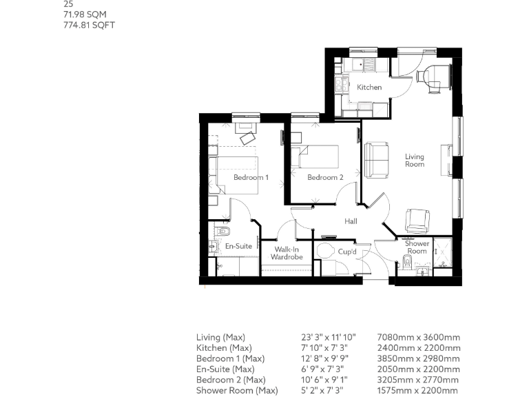
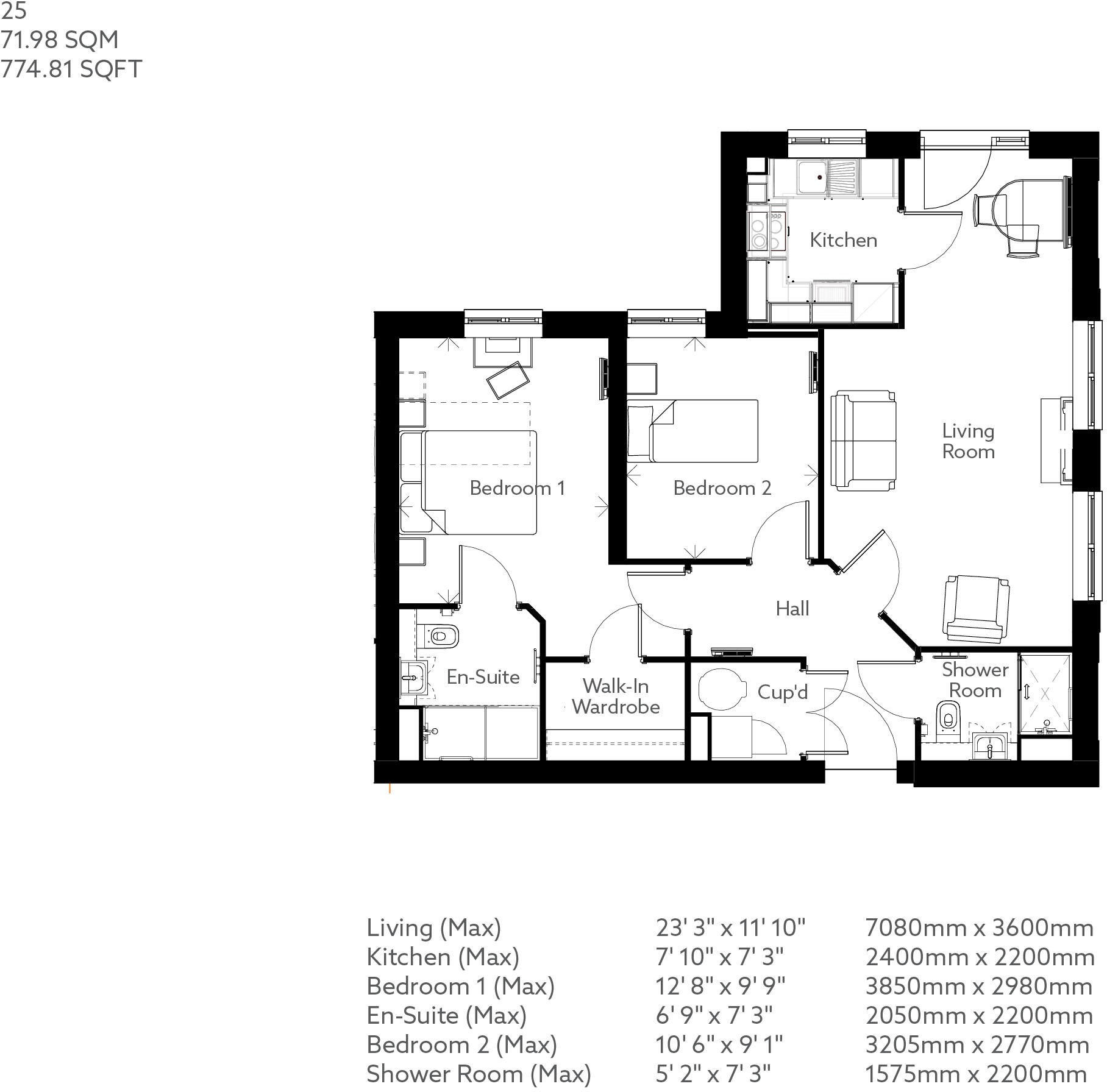
- Two bedrooms, one shower room, approx. 774 sqft (first floor)
- South-east facing with private balcony and energy-saving design
- Large communal lounge, landscaped gardens and gazebo
- On-site manager during office hours and 24/7 call system
- Hotel-style guest suite and pets allowed
- Leasehold tenure (1000 years remaining); council tax unknown
- Located near River Exe, countryside, shops and cafés
This purpose-built, new-build retirement apartment in Orchid Place offers low-maintenance independent living for the over-60s. The bright two-bedroom layout (approx. 774 sqft) sits on the first floor with a private balcony and south-east aspect, designed for comfort and energy efficiency.
Residents benefit from extensive communal facilities — landscaped gardens, a large communal lounge for events, a hotel-style guest suite, and an on-site manager during office hours. Practical safety features include a 24/7 call system and extra safety fittings, making daily life easier and more secure.
The location is a strong draw: close to countryside, the River Exe and the coast, with shops, cafés and local amenities within easy reach. The development sits in a very affluent area with fast broadband and excellent mobile signal.
Important practical notes: the property is leasehold (long lease remaining: 1000 years) and intended for age-restricted retirement use, not family living. Council tax details are not provided. Crime in the area is reported as average.
1 bedroom retirement property for sale in Orchid Place,
Topsham Road,
St. Leonards,
Exeter,
EX2 4SQ, EX2 — £320,000 • 1 bed • 1 bath
1 bedroom retirement property for sale in Orchid Place,
Topsham Road,
St. Leonards,
Exeter,
EX2 4SQ, EX2 — £255,000 • 1 bed • 1 bath • 629 ft²
2 bedroom retirement property for sale in Orchid Place,
Topsham Road,
St. Leonards,
Exeter,
EX2 4SQ, EX2 — £345,000 • 2 bed • 1 bath • 872 ft²
2 bedroom retirement property for sale in Orchid Place,
Topsham Road,
St. Leonards,
Exeter,
EX2 4SQ, EX2 — £400,000 • 2 bed • 1 bath • 785 ft²
1 bedroom retirement property for sale in Orchid Place,
Topsham Road,
St. Leonards,
Exeter,
EX2 4SQ, EX2 — £217,500 • 1 bed • 1 bath
2 bedroom flat for sale in Topsham Road, Exeter, Devon, EX2 — £345,000 • 2 bed • 1 bath • 774 ft²


















































