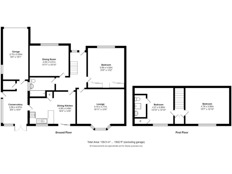
Single-storey living with large gardens and easy A1 access.
Three double bedrooms, main with modern shower room ensuite
Set in a peaceful village close to Boroughbridge, this spacious three-bedroom detached bungalow suits families seeking single-floor living with generous outdoor space. The home offers two reception rooms, a sunlit conservatory and a modern fitted kitchen overlooking beautifully landscaped gardens — ideal for children and outdoor entertaining. The principal bedroom benefits from an ensuite-style modern shower room; the other two bedrooms are good-sized doubles.
Practical updates include a new boiler fitted in 2023 and double glazing (install date unknown). An attached single garage accessed internally provides secure storage and parking, with additional driveway space. The property sits on a large plot and has scope for further landscaping or modest extensions, subject to planning, for buyers wanting to increase living space or personalise finishes.
Helpful village connections put Boroughbridge, Ripon and the A1 within easy reach for commuting and amenities, while the location retains a rural character. Important points to note: the house dates from the mid-20th century so some areas may reflect that era, and council tax is above average. Overall this is a roomy, well-kept bungalow offering comfortable, low‑maintenance family living with real garden appeal.
2 bedroom detached bungalow for sale in Druids Meadow, Boroughbridge, YO51 — £350,000 • 2 bed • 2 bath • 776 ft²
2 bedroom detached bungalow for sale in 149 Druids Meadow, Boroughbridge, York, North Yorkshire YO51 9NP, YO51 — £390,000 • 2 bed • 2 bath • 922 ft²
3 bedroom detached bungalow for sale in Glebe Meadow, Sharow, Ripon, HG4 — £289,950 • 3 bed • 2 bath • 738 ft²
2 bedroom detached bungalow for sale in St. Johns Walk, Boroughbridge, York, YO51 — £320,000 • 2 bed • 1 bath • 872 ft²
3 bedroom detached bungalow for sale in Knaresborough Road, Bishop Monkton, HG3 — £500,000 • 3 bed • 2 bath • 1452 ft²
3 bedroom detached bungalow for sale in York Lane, Knaresborough, HG5 — £525,000 • 3 bed • 1 bath • 1424 ft²










































































