IG10 4PX - 5 bedroom detached house for sale in The Avenue, Loughton,…

View on Property Piper

5 bedroom detached house for sale in The Avenue, Loughton, IG10

Summary - 40A THE AVENUE LOUGHTON IG10 4PX

5 bed 2 bath Detached

Spacious newly renovated family home with large rear garden and excellent transport links.
Five bedrooms across multiple floors, flexible family layout
This newly refurbished detached house on The Avenue offers spacious family living with modern finishings and excellent transport links. Recent works include new plumbing, full rewiring, a new boiler with Wi‑Fi control and a brand‑new kitchen and bathrooms, giving a move‑in ready feel for busy households.

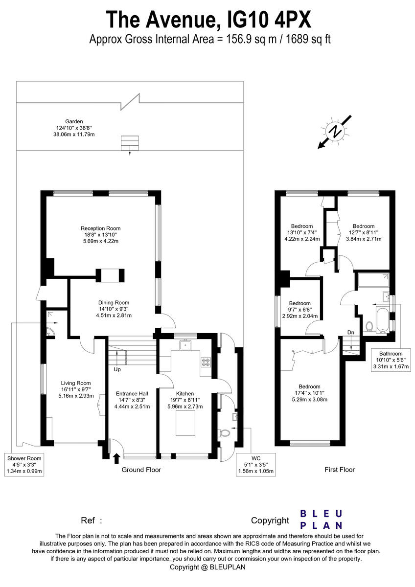
Set on a large rear plot (approx. 124 ft), the house provides multiple reception rooms, an attractive conservatory and a sizeable kitchen‑diner ideal for family meals and entertaining. The layout spreads over multiple floors with useful ancillary space including a contemporary basement area and a ground‑floor WC/ensuite for convenience.

Practical points are clear and upfront: the property has five bedrooms but two main bathrooms, and the heating system is warm‑air mains gas rather than radiators. The walls are original cavity construction with no added insulation assumed, which may present an opportunity to improve energy efficiency.

Located about 0.3 miles from Loughton Underground Station, the home suits commuting professionals and families wanting quick access to the city while retaining a tranquil, affluent neighbourhood. Sold freehold and with no onward chain, it’s straightforward to view and move into following the recent refurbishment.

Property Details

Image Descriptions

Floorplan Description

Rooms

Textual Property Features

Target Audience

AI Tags

Detected Visual Features

EPC Details

Nearby Schools

Nearest Bars And Restaurants

,,,,}

Nearest General Shops

,,}

Nearest Grocery shops

,,}

Nearest Supermarkets

,,}

Nearest Religious buildings

,,}

Nearest Medical buildings

,,,}

Nearest Airports

,}

Nearest Leisure Facilities

,,,,}

Nearest Tourist attractions

,,}

Nearest Train stations

,,,,}

Nearest Bus stations and stops

,,,,}

Nearest Hotels

,,}

Tags

Local Market Stats

Similar Properties

Meta

High Res Images

Compatible Images

Low res Images

Thumbnails

Raw Images

High Res Floorplan Images

Compatible Floorplan Images

Low res Floorplan Images

FloorplanImages Thumbnail

Raw Floorplan Images