Period charm and expansive garden in a well-connected conservation area.
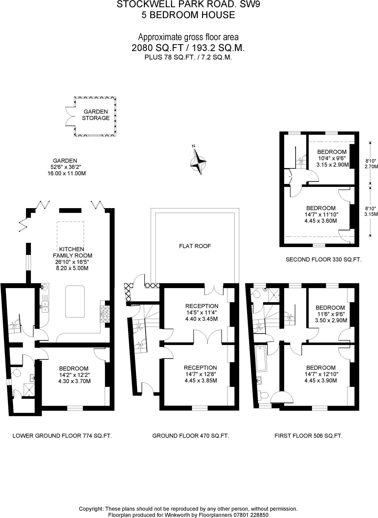
Five bedrooms across four floors, approx. 2,080 sq ft
Large private rear garden — c.53 feet, landscaped and terraced
Open-plan kitchen extension with skylight and bi-fold doors
Electric underfloor heating; ultrafast broadband available
Lower-ground bedroom with shower room and separate side access
Freehold; residents’ on-street parking only
Council tax noted as quite expensive — check band and costs
Local crime level reported high — review local statistics
This spacious five-bedroom semi-detached house sits in the Stockwell Park Conservation Area and extends to roughly 2,080 sq ft over four floors. The house combines period character — sash windows, cast-iron fireplace, picture rails and high ceilings — with modern interventions: a large kitchen extension with skylight, bi-fold doors and electric underfloor heating with ultrafast broadband. A private landscaped garden of about 53 feet and useful side access add practical outdoor amenity for family life.
Accommodation is versatile: two generous reception rooms on the raised ground floor, a lower-ground guest bedroom with shower room and separate side access, and three further upper-floor bedrooms. The layout suits families needing flexible space for work, play and entertaining; large windows and the extension provide strong daylight to the kitchen/family area.
Important practical points are stated plainly: the property is freehold with residents’ on-street parking, council tax is described as quite expensive, and the local area records higher crime levels. Heating is electric underfloor; mains gas and water are connected but the primary heating fuel is electricity. Prospective buyers should verify running costs and local safety data.
For buyers seeking roomy family accommodation in an inner‑London conservation setting, this home offers a rare combination of period detail, generous garden, and modern living spaces, while requiring practical consideration of costs and local crime statistics.
5 bedroom terraced house for sale in Clapham Road, London SW9 — £1,650,000 • 5 bed • 2 bath • 2577 ft²
3 bedroom house for sale in St. Martin's Road, London, SW9 — £1,150,000 • 3 bed • 2 bath • 1463 ft²
5 bedroom terraced house for sale in Stockwell Park Crescent, London, SW9 — £2,650,000 • 5 bed • 3 bath • 3344 ft²
4 bedroom terraced house for sale in St. Martin's Road, London, SW9 — £1,350,000 • 4 bed • 2 bath • 1592 ft²
5 bedroom terraced house for sale in St. Martin's Road, London, SW9 — £2,100,000 • 5 bed • 3 bath • 2046 ft²
4 bedroom semi-detached house for sale in Groveway, Stockwell, SW9 — £2,450,000 • 4 bed • 3 bath • 3180 ft²






















































































