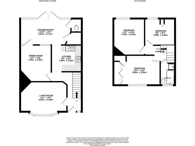
Three-bedroom Victorian terrace with rear garage and generous garden — ideal for small families.
Three double and single bedrooms with period bay window
Rear conservatory opening onto landscaped garden and decking
Garage to rear with direct garden access for parking/storage
Contemporary fitted kitchen with high-spec integrated appliances
Small overall footprint; rooms generally compact for family use
Small forecourt; limited off-street parking at front
Freehold property with gas heating, fast broadband, very low crime
Local schools mixed Ofsted ratings; some require improvement
This well-presented three-bedroom bay-and-forecourt terrace offers practical family living in Southsea with the uncommon benefit of a rear garage. The ground floor flows from a bay-fronted living room to a separate dining room and a contemporary kitchen, while a conservatory opens onto a landscaped rear garden — a useful mix of indoor and outdoor space for families.
Upstairs provides three bedrooms and a modern family bathroom, with rooms that retain period proportions but are generally compact. The property is freehold, with mains services, gas central heating, fast broadband and very low local crime — all useful comforts for everyday life and working from home.
Notable positives include the garage with direct garden access, a neat forecourt, and proximity to local amenities and transport links. Council tax is described as affordable, and the area’s demographic profile (aspiring urban households, white professionals) supports steady local demand.
Buyers should note material limitations: the house is small overall with modest room sizes and a small forecourt, so storage and expansion are limited without significant alteration. Nearby primary and secondary schools vary in Ofsted rating (some require improvement), which may concern buyers prioritising top-rated schooling. Internal viewing is recommended to assess room sizes and layout for family needs.
3 bedroom terraced house for sale in King Street, Southsea, PO5 — £325,000 • 3 bed • 1 bath • 787 ft²
3 bedroom end of terrace house for sale in Grayshott Road, Southsea, PO4 — £300,000 • 3 bed • 1 bath • 727 ft²
3 bedroom terraced house for sale in Bramshott Road, Southsea, Hampshire, PO4 — £315,000 • 3 bed • 1 bath • 1049 ft²
4 bedroom terraced house for sale in Winter Road, Southsea, PO4 — £410,000 • 4 bed • 2 bath • 1208 ft²
3 bedroom terraced house for sale in Grayshott Road, Southsea, PO4 — £290,000 • 3 bed • 1 bath • 644 ft²
4 bedroom terraced house for sale in Heyshott Road, Southsea, PO4 — £415,000 • 4 bed • 2 bath • 979 ft²


































































































































