SW12 9SN - 1 bed bright top‑floor one‑bed in Oakmead Road, SW12 9SN

View on Property Piper

1 bedroom flat for sale in Oakmead Road, Balham, SW12

Summary - 1A OAKMEAD ROAD LONDON SW12 9SN

1 bed 1 bath Flat

Private roof terrace moments from transport links and Tooting Common.
- Top‑floor one‑bed flat with private roof terrace
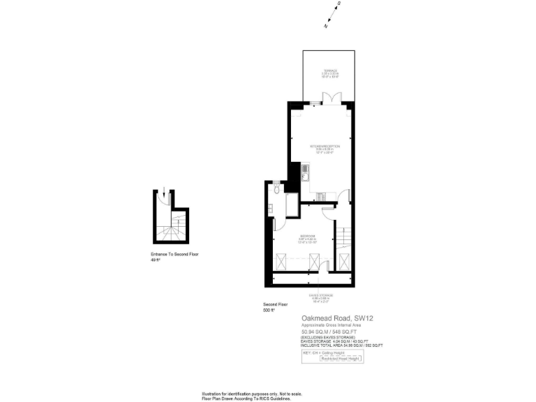
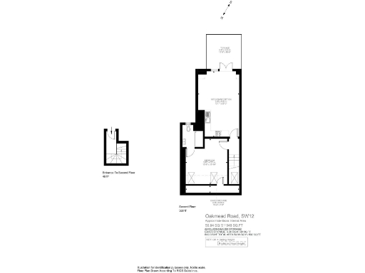
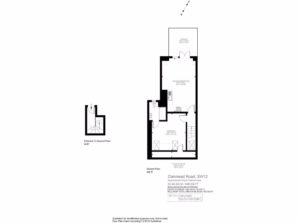
- Approximately 548 sq ft with good built‑in storage
- Two‑minute walk to Balham Mainline and Underground
- Fast broadband and excellent mobile signal
- Leasehold with 113 years remaining
- Victorian building; solid brick walls, no confirmed insulation
- Top‑floor access via stairs may limit accessibility
Set on the top floor of an elegant Victorian end‑terrace, this well‑presented one‑bedroom flat offers a bright reception/kitchen and a private roof terrace — ideal for urban outdoor living. The apartment measures approximately 548 sq ft and benefits from double glazing, mains gas heating and plentiful built‑in storage.

The location is a standout: a two‑minute walk to Balham Mainline and Underground stations with direct links to the City and West End, and moments from Tooting Common. Fast broadband and excellent mobile signal suit remote working or streaming, while a range of shops, cafés and leisure facilities are within easy reach.

Practical points to note: the property is leasehold with 113 years remaining — a healthy term for prospective buyers — and occupies the top floor, so access involves stairs and may affect mobility. The building dates from before 1900 and has solid brick walls with no confirmed cavity insulation; there may be scope for energy improvement works.

This flat will suit a first‑time buyer seeking a stylish, well‑connected home or an investor looking for a desirable Balham location. It combines period character and contemporary finishes with genuine outside space — a rare find for a one‑bed in this postcode.

Property Details

Image Descriptions

Floorplan Description

Rooms

Textual Property Features

Target Audience

AI Tags

Detected Visual Features

EPC Details

Nearby Schools

Nearest Bars And Restaurants

,,,,}

Nearest General Shops

,,}

Nearest Grocery shops

,,}

Nearest Supermarkets

,,}

Nearest Religious buildings

,,}

Nearest Medical buildings

,,,}

Nearest Airports

,,}

Nearest Leisure Facilities

,,,,}

Nearest Tourist attractions

,,}

Nearest Train stations

,,,,}

Nearest Bus stations and stops

,,,,}

Nearest Hotels

,,}

Tags

Local Market Stats

AirBnB Data

Similar Properties

Meta

High Res Images

Compatible Images

Low res Images

Thumbnails

Raw Images

High Res Floorplan Images

Compatible Floorplan Images

Low res Floorplan Images

FloorplanImages Thumbnail

Raw Floorplan Images