Character cottage near village green, ripe for thoughtful renovation.
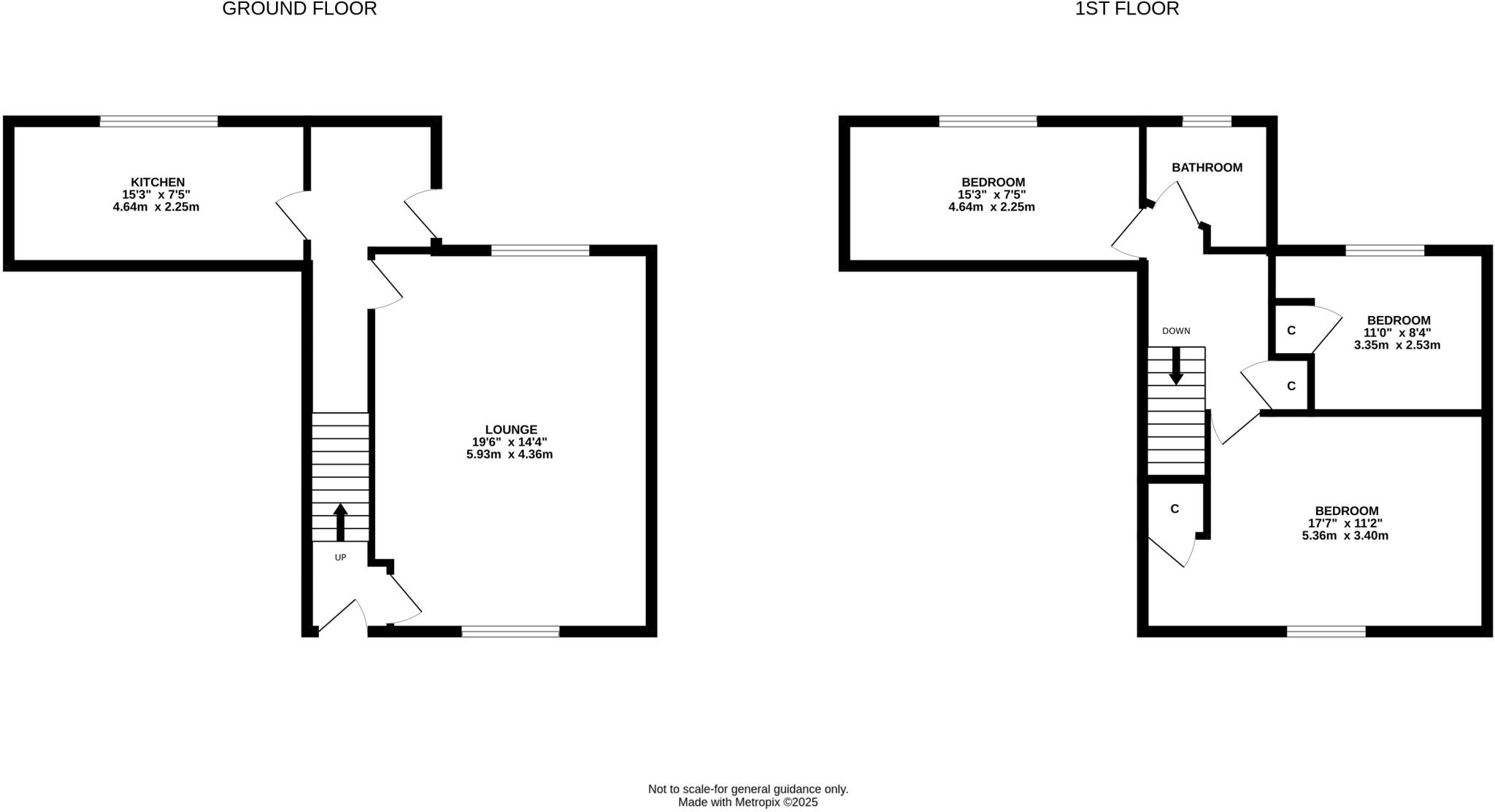
Three bedrooms over two storeys with character features and exposed beams
This traditional stone cottage sits close to Melsonby’s village green and offers genuine scope for improvement and character-led living. The three-bedroom, two-storey layout includes a large lounge with exposed beams and a feature fireplace, plus front and rear gardens described as low-maintenance and patio-equipped. Tenure is freehold and the property will be sold at auction (bidding opens 24 hours before the live online sale on 11th December 2025).
The house requires renovation and cosmetic updating throughout; buyers should expect works to modernise heating and services and to refresh internal finishes. Heating is by an oil-fired boiler with radiators, glazing is double-glazed (install date unknown), and the building is stone construction with partial wall insulation assumed. Broadband speeds are very slow in the area; mobile signal is excellent.
Practical considerations: parking is on-street only, the property lies within a conservation area, and the seller recommends a chartered surveyor to check building safety and details. Council Tax is Band C and the local area is very affluent with very low crime; nearby schools include several rated Good and Outstanding. For a buyer seeking village life and character, this cottage is a renovation opportunity with immediate auction timelines.
3 bedroom terraced house for sale in Ladywell Court, Melsonby, Richmond, DL10 — £250,000 • 3 bed • 2 bath • 1066 ft²
2 bedroom cottage for sale in Dawn View, 2 The Green, Melsonby, Nr Richmond, DL10 — £180,000 • 2 bed • 1 bath • 635 ft²
2 bedroom cottage for sale in Moor Road, Melsonby, DL10 — £174,950 • 2 bed • 1 bath • 668 ft²
2 bedroom cottage for sale in Dilston Cottage, Aldbrough St John, Nr Richmond, DL11 7TL, DL11 — £270,000 • 2 bed • 1 bath • 449 ft²
4 bedroom detached house for sale in Glebe Court, Melsonby, Richmond, DL10 — £399,950 • 4 bed • 2 bath • 1525 ft²
2 bedroom terraced house for sale in Tees View, Gainford, Darlington, Durham, DL2 — £180,000 • 2 bed • 1 bath • 774 ft²






































