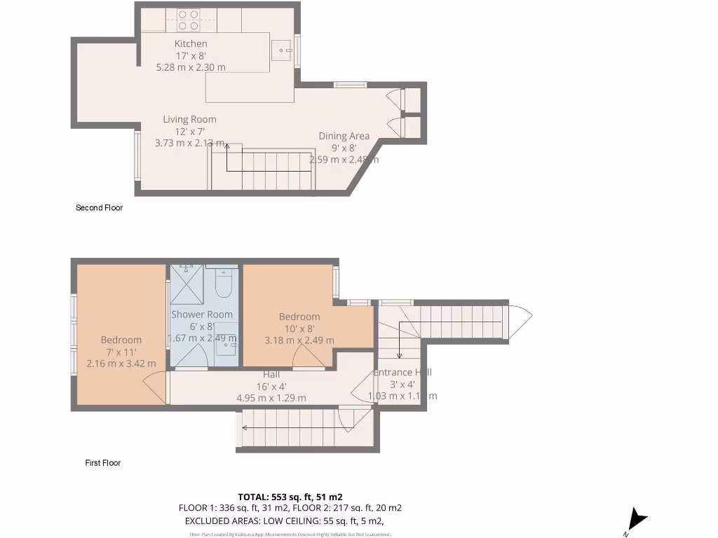
Recently renovated two bedroom with skylight and excellent Jubilee line access.
- Top-floor duplex with skylight and strong natural light
- Recently renovated with new double-glazed windows and wiring
- Approximately 553 sq ft (51 sq m); compact overall size
- Long lease remaining (about 148 years)
- Service charge c. £864 per annum (below average)
- One shower room only; small attic ceilings restrict headroom
- Located 0.6 miles from Willesden Green station (Jubilee line)
- Area records high crime; consider security and insurance costs
A smartly renovated top-floor duplex moments from Gladstone Park and Willesden Green station. The two-bedroom layout spreads over about 553 sq ft, with a bright open-plan living/kitchen, a skylight to maximise daylight and solid oak parquet flooring throughout. New double-glazed windows, updated wiring and a wireless thermostat reduce immediate maintenance needs.
This apartment suits a first-time buyer seeking low-entry city living with easy Jubilee line access and park-side leisure on the doorstep. The compact footprint is efficient: an attic-style second floor provides a cosy bedroom or home office, while integrated appliances and a breakfast bar make the kitchen practical for everyday use.
Practical details are favourable: a long lease (about 148 years remaining), a below-average service charge (reported c. £864 p.a.), and affordable council tax band C. Broadband speeds are average but mobile signal is excellent.
Be aware of material negatives: the property sits in a high-crime area, which may affect insurance or personal security decisions. The home is small and the attic ceilings are lower than standard, limiting headroom in parts of the upper level. Ground rent and EPC details are unspecified in the information provided.
2 bedroom flat for sale in Melrose Avenue, Willesden Green, NW2 — £550,000 • 2 bed • 1 bath • 791 ft²
1 bedroom flat for sale in Olive Road, Cricklewood, NW2 — £400,000 • 1 bed • 1 bath • 500 ft²
2 bedroom flat for sale in Ashford Road, Cricklewood, NW2 — £475,000 • 2 bed • 2 bath • 895 ft²
2 bedroom flat for sale in Dartmouth Road, Cricklewood, NW2 — £560,000 • 2 bed • 1 bath • 795 ft²
1 bedroom flat for sale in Dollis Hill Lane, London, NW2 — £325,000 • 1 bed • 1 bath • 476 ft²
2 bedroom flat for sale in Church Road, Harlesden, London, NW10 — £325,000 • 2 bed • 1 bath • 555 ft²














































