Light-filled open plan living with vaulted roof and modern kitchen.
Grade II listed riverside penthouse with elevated views
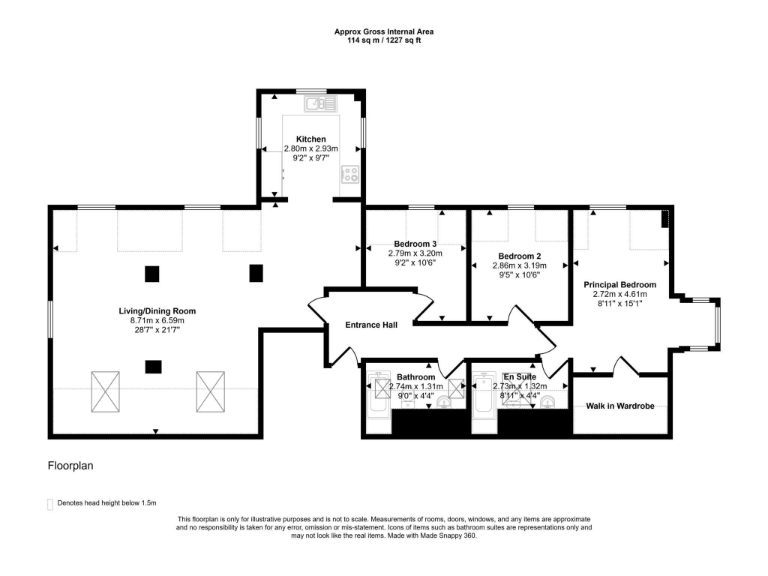
Set in a converted Grade II listed mill, Apartment 5 is a light-filled penthouse with elevated riverside views across the River Avon, the Ham and Tewkesbury Abbey. The apartment offers generous, open-plan living beneath a vaulted roof with exposed beams and multiple rooflights, plus a modern fitted kitchen with integrated appliances and underfloor heating.
The principal bedroom benefits from a walk-in wardrobe and an en suite bathroom; two further double bedrooms and a modern family bathroom complete the layout. At about 1,227 sq ft, the apartment feels spacious for its type and enjoys a different outlook from nearly every window — a strong selling point for buyers seeking character and atmosphere.
Practical points to note: this is a leasehold property (999-year lease from 2005) with an average service charge of £3,120 pa and off-street parking provided on a first-come, first-served basis. Restrictions include no pets and no short lets, and the building’s listed status will affect repairs, alterations and maintenance choices.
Important risk factors: the setting is within a high flood-risk area and the Grade II listing may complicate structural or external alterations. Buyers should verify flood cover, costs of specialist listed-building maintenance, and confirm service charge and management arrangements with legal advisers before committing. The apartment is offered chain free for a quicker move.
3 bedroom apartment for sale in Mill Street, Tewkesbury, GL20 — £250,000 • 3 bed • 2 bath
3 bedroom apartment for sale in Mill Street, Tewkesbury, GL20 — £250,000 • 3 bed • 2 bath
1 bedroom retirement property for sale in Home Abbey House , High Street , Tewkesbury, GL20 — £165,000 • 1 bed • 1 bath
1 bedroom retirement property for sale in High Street, Tewkesbury, GL20 — £165,000 • 1 bed • 1 bath
1 bedroom apartment for sale in Church Street, Tewkesbury, GL20 — £190,000 • 1 bed • 1 bath • 592 ft²
1 bedroom retirement property for sale in Home Abbey House, High Street, Tewkesbury, GL20 — £165,000 • 1 bed • 1 bath • 485 ft²






















































































































