Compact starter or rental opportunity near shops, schools, and transport.
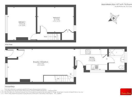
- Two bedrooms in a Victorian mid-terrace, 677 sq ft total
A compact two-bedroom mid-terrace in Swindon Old Town offered with no onward chain, ideal for a first home or buy-to-let. The house blends Victorian character with some contemporary touches and provides straightforward, practical accommodation across two floors.
The property measures about 677 sq ft and benefits from double glazing (install date unknown), mains gas heating via boiler and radiators, and reliable broadband and mobile signal — good for working from home or letting to professionals. On-street parking keeps running costs low and council tax is inexpensive.
Notable considerations: the building is Victorian solid brick with assumed no cavity insulation, the plot is small and the area shows higher crime rates and local deprivation. These factors affect running costs and may require investment in insulation, security measures or cosmetic updating to maximise rental income or resale value.
Positioned close to shops, cafés, pubs and several well-rated primary schools, the property suits buyers wanting an Old Town location with easy access to amenities. For investors it offers clear rental demand; for first-time buyers it provides a manageable starter home with potential to add value by improving energy efficiency and presentation.
2 bedroom terraced house for sale in Cannon Street, Old Town, Swindon, SN1 — £200,000 • 2 bed • 1 bath • 693 ft²
2 bedroom terraced house for sale in Clifton Street, Swindon, Wiltshire, SN1 — £229,950 • 2 bed • 1 bath • 635 ft²
2 bedroom terraced house for sale in Plymouth Street, Swindon, Wiltshire, SN1 — £230,000 • 2 bed • 1 bath • 643 ft²
2 bedroom terraced house for sale in Crombey Street, Swindon, SN1 — £220,000 • 2 bed • 1 bath • 899 ft²
2 bedroom terraced house for sale in Dixon Street, Swindon, Wiltshire, SN1 — £240,000 • 2 bed • 2 bath • 1001 ft²
2 bedroom terraced house for sale in Stanley Street, Swindon, SN1 — £210,000 • 2 bed • 1 bath • 739 ft²














































































