Bright family living with generous parking and garden.
- Large conservatory adds bright extra living space
- Refitted contemporary kitchen and ground-floor cloakroom
- Long driveway and single attached garage for multiple cars
- Corner plot location adjacent to the Cuckoo Trail
- Freehold; mains gas boiler and radiators
- Single family bathroom only, no ensuite
- Built 1983–1990; some systems/finishes may need future updating
- Small communal green rent charge £15 per year
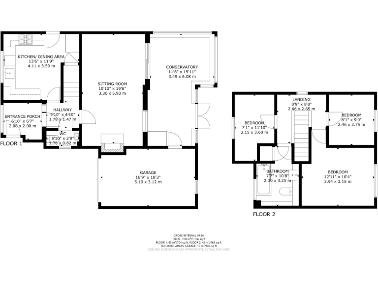
Set on a corner plot adjacent to the Cuckoo Trail, this modern three-bedroom detached home offers comfortable family living with generous parking and garden space. The living room spans the width of the house and opens into a large conservatory that brings extra light and useful day-to-day space. A refitted, contemporary kitchen and a ground-floor cloakroom add practical convenience for families.
Upstairs are three bedrooms and a contemporary family bathroom; note there is no ensuite, so the single bathroom serves all bedrooms. The property is freehold, built in the 1980s, and benefits from mains gas central heating, double glazing (install date unknown) and a single attached garage with lengthy driveway parking.
The home is beautifully presented and ready to move into, though buyers should be aware of its era: some systems or finishes may be original or need updating over time. There is a small communal green rent charge of £15 per annum. Local amenities include good primary schools nearby; the nearest secondary school has a less favourable Ofsted rating, so check options if secondary schooling is a priority.
3 bedroom end of terrace house for sale in Blossom Walk, Hailsham, BN27 — £325,000 • 3 bed • 1 bath • 925 ft²
3 bedroom detached house for sale in Green Grove, Hailsham, BN27 — £325,000 • 3 bed • 1 bath • 927 ft²
4 bedroom house for sale in Sycamore Drive, Hailsham, BN27 — £360,000 • 4 bed • 1 bath • 1262 ft²
3 bedroom link detached house for sale in The Oaks, Heathfield TN21 8YA, TN21 — £375,000 • 3 bed • 2 bath • 976 ft²
3 bedroom terraced house for sale in Hedley Way, Hailsham, BN27 — £360,000 • 3 bed • 2 bath • 1237 ft²
3 bedroom end of terrace house for sale in Splice Lane, Hailsham, East Sussex, BN27 — £350,000 • 3 bed • 2 bath • 1150 ft²






















































