GU21 2FW - 4 bedroom semidetached house for sale in Brookwood Farm Dri…

View on Property Piper

4 bedroom semi-detached house for sale in Brookwood Farm Drive, Knaphill, Woking, Surrey, GU21

Summary - 52, Brookwood Farm Drive, Knaphill, WOKING GU21 2FW

4 bed 2 bath Semi-Detached

Walk to Brookwood station — modern 4-bed family home with two parking spaces.
Four bedrooms across three floors, including top-floor master with en suite
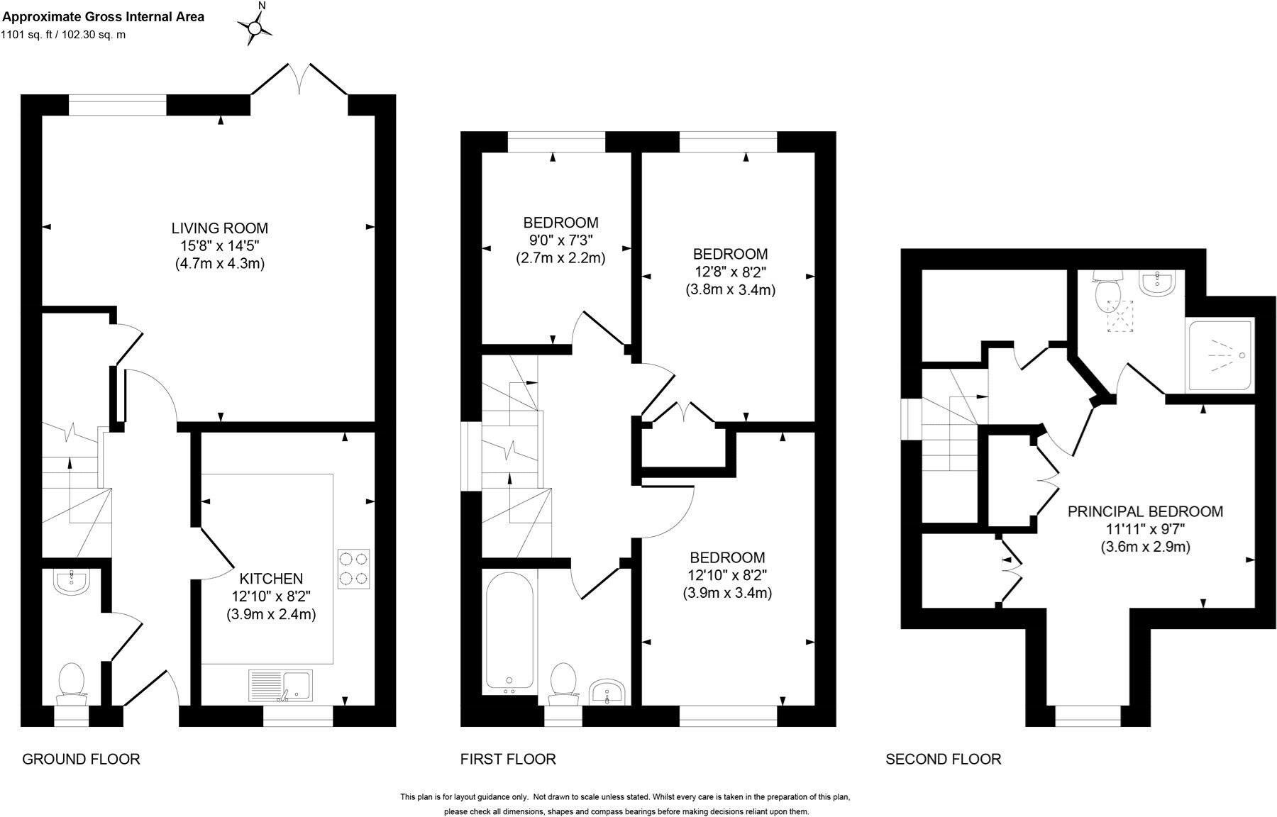
This well-presented four-bedroom semi-detached townhouse sits across three floors within easy walking distance of Brookwood station and Knaphill village, making it practical for commuters and families. The top-floor principal bedroom benefits from built-in wardrobes and a private en suite, while three further bedrooms and a family bathroom occupy the middle floor. Ground-floor living is arranged with a contemporary kitchen, bright lounge/dining area with French doors, and a handy cloakroom.

Outside, the rear garden is low-maintenance artificial lawn with designated areas for relaxing and entertaining, and a rear gate leads to two allocated off-street parking spaces. The property is freehold and located in a very affluent area with good local schools and nearby green space at Brookwood Country Park.

Notable considerations: the overall plot and garden are small compared with detached alternatives, the home is a compact 1,101 sq ft, and annual service charges of £320 apply. Broadband speeds are average and council tax is above average. These facts make the house especially suited to families seeking convenient transport links and low-maintenance outdoor space, or investors targeting commuter demand rather than large garden buyers.

Property Details

Brochure Descriptions

Image Descriptions

Floorplan Description

Rooms

Textual Property Features

Target Audience

AI Tags

Detected Visual Features

Nearby Schools

Nearest Bars And Restaurants

,,,,}

Nearest General Shops

,,}

Nearest Grocery shops

,,}

Nearest Supermarkets

,,}

Nearest Religious buildings

,,}

Nearest Medical buildings

,,,}

Nearest Airports

,}

Nearest Leisure Facilities

,,,,}

Nearest Tourist attractions

,,}

Nearest Train stations

,,,,}

Nearest Bus stations and stops

,,,,}

Nearest Hotels

,,}

Tags

Local Market Stats

Similar Properties

Meta

High Res Images

Compatible Images

Low res Images

Thumbnails

Raw Images

High Res Floorplan Images

Compatible Floorplan Images

Low res Floorplan Images

FloorplanImages Thumbnail

Raw Floorplan Images