Handy single-storey home near Worle Village — private garden, driveway and garage.
Chain-free two-bedroom semi-detached bungalow
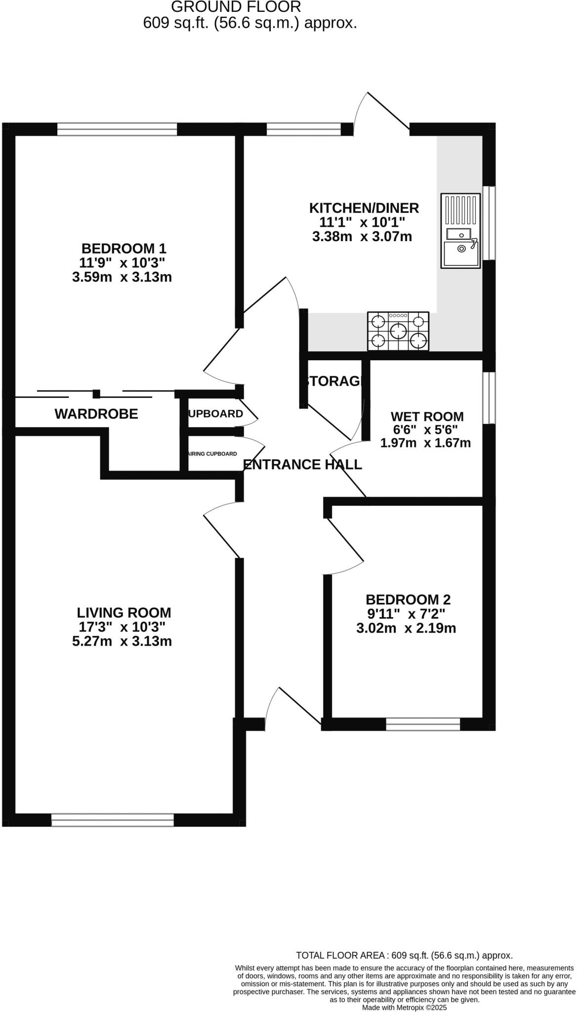
A rare single-storey opportunity in Sherwood Crescent, offered chain-free and within easy walking distance of Worle Village shops and amenities. The bungalow provides straightforward, accessible living on one level — ideal for downsizers seeking convenience and low-maintenance grounds.
The interior includes two bedrooms, a sitting room, a good-size kitchen and a wet room. Gas central heating and double glazing (installed pre-2002) are in place and the property has an EPC rating of C, but the home does require cosmetic updating throughout.
Outside, the generous driveway and adjacent single garage provide plentiful parking, while the private rear garden is a blank canvas for someone wanting to create a quiet outdoor retreat. Note the property is relatively small (approximately 609 sq ft) and was constructed in the late 1960s/early 1970s with cavity walls likely uninsulated — further insulation work may be needed to improve thermal performance.
2 bedroom detached bungalow for sale in Worle High Street, Weston-Super-Mare, BS22 — £315,000 • 2 bed • 1 bath
2 bedroom semi-detached bungalow for sale in Orchard Close, Worle, Weston-Super-Mare, BS22 — £265,000 • 2 bed • 1 bath • 894 ft²
2 bedroom bungalow for sale in Coalbridge Close, Weston-super-Mare, Somerset, BS22 — £285,000 • 2 bed • 1 bath • 934 ft²
2 bedroom detached bungalow for sale in Lapwing Gardens, Worle- No Chain, BS22 — £275,000 • 2 bed • 1 bath • 743 ft²
2 bedroom semi-detached bungalow for sale in Balmoral Way, Weston-Super-Mare, BS22 — £280,000 • 2 bed • 1 bath
2 bedroom detached bungalow for sale in Savernake Road, Worle - SUPERB CONDITION, BS22 — £299,995 • 2 bed • 1 bath • 738 ft²






















































































