Consent in place for family homes close to local amenities and motorway links.
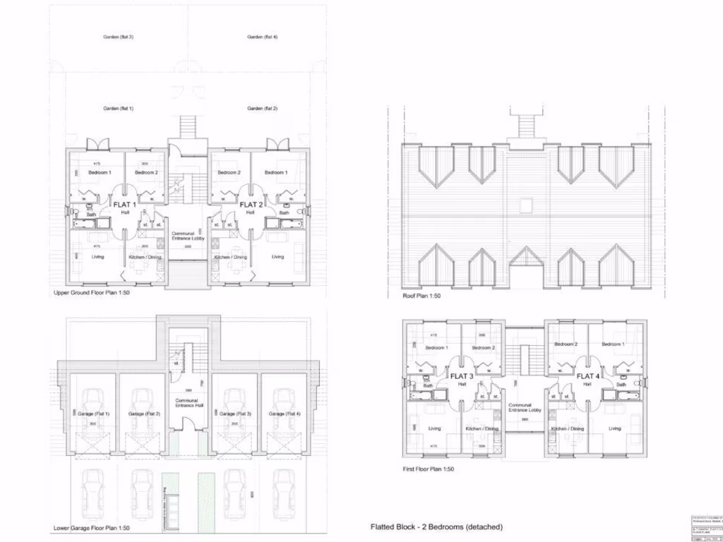
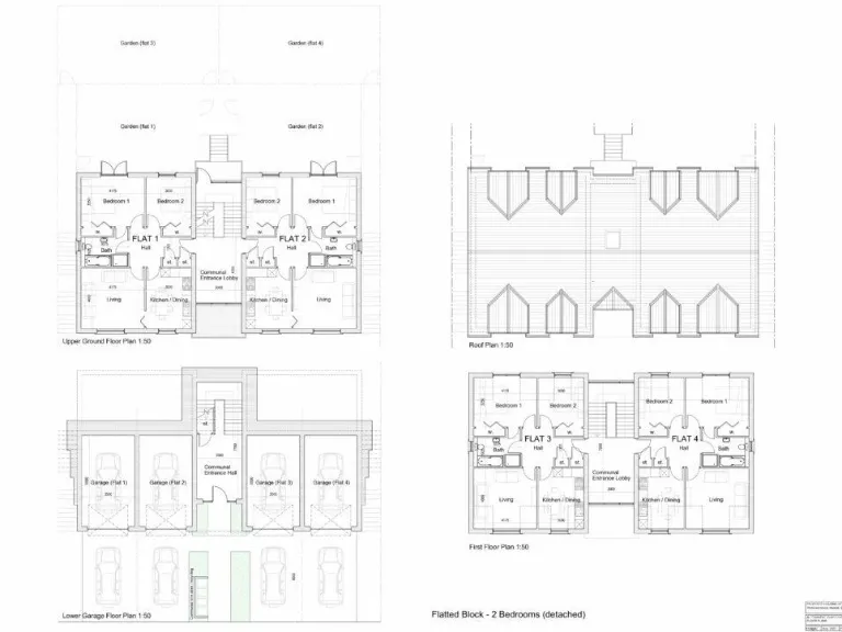
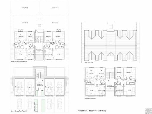
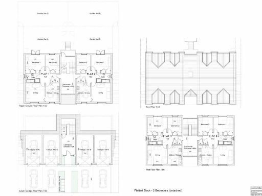
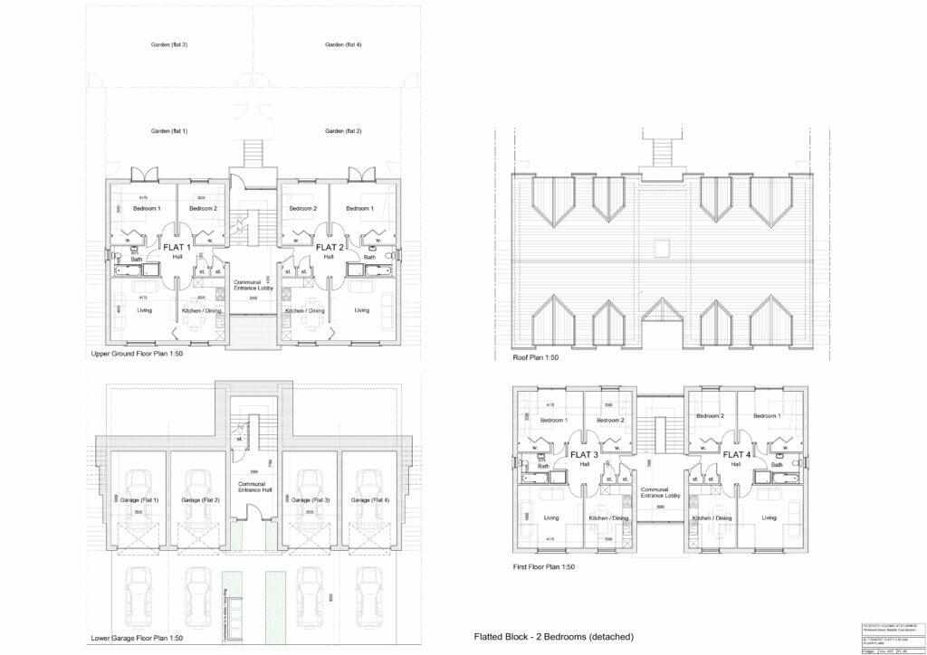
Full planning for 22 homes (10 detached, 12 semi-detached)
Additional drawings prepared for 32-unit scheme
Freehold site offered at auction, guide price £130,000
Central Muirkirk location with local amenities nearby
Conflicting plot-size info (0.4 acres vs 2.7 acres) — verify
Area classified as very deprived — consider market sensitivity
Excellent mobile signal; broadband speeds average
Developer will need to fund construction and infrastructure works
A rare development parcel in central Muirkirk with full planning for 22 homes (10 detached 4/5-bed; 12 semi 3-bed) and additional drawings for 32 units. The site is offered freehold and will be sold at auction, priced at £130,000, with excellent mobile coverage and average broadband. Two different plot-size figures appear in the sales material (0.4 acres and 2.7 acres); buyers should verify the precise area before bidding.
This location sits in a semi-rural former industrial village in East Ayrshire, around 45 minutes’ drive from Ayr and Kilmarnock and within 20 minutes of the M74. Local amenities include a primary school, post office, sports and leisure facilities, and community clubs, supporting family housing or phased build-out for a developer.
The site presents clear value drivers: planning permission in place, comparables in Cumnock sold recently, and central village positioning. Material considerations include the village’s high levels of area deprivation and the need for developer-led construction and infrastructure works to deliver the consented homes. The plot will suit a builder/developer or an owner-occupier planning a bespoke new home scheme, but prospective buyers should carry out technical and legal due diligence ahead of the auction.
Land for sale in Land At Wellwood Street, Muirkirk, Cumnock, KA18 3RR, KA18 — £150,000 • 1 bed • 1 bath
Land for sale in Plot Of Land, 77a Wellwood Street, Murkirk, KA18 3QX, KA18 — £30,000 • 1 bed • 1 bath
Land for sale in Plot Of Land, 77a Wellwood Street, Murkirk, KA18 3QX, KA18 — £25,000 • 1 bed • 1 bath
Land for sale in Plot 4 Kirk Green, Muirkirk, KA18 3RT, KA18 — £22,000 • 3 bed • 1 bath
Land for sale in Plot 5 Kirk Green, Muirkirk, KA18 3RT, KA18 — £9,000 • 3 bed • 1 bath
Land for sale in Development Plot With Lapsed Planning, Miller's Road, Muirkirk, Cumnock, KA18 — £38,000 • 1 bed • 1 bath • 24972 ft²














































































































































