Contemporary four‑bed home with garage and energy efficiency, ideal for family living.
- Detached modern two‑storey house with solar panels and EPC B
- Spacious dining kitchen and separate utility room
- Master bedroom with en‑suite plus three further bedrooms
- Driveway, single garage and manageable garden
- Fast broadband and excellent mobile signal throughout
- Average overall size — about 1,152 sq ft (manageable scale)
- Located in a very deprived area; may affect local services
- Council tax described as expensive; consider ongoing costs
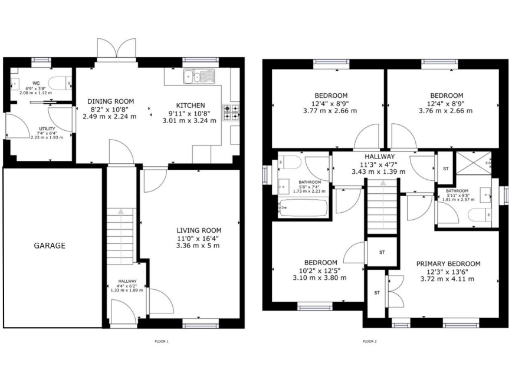
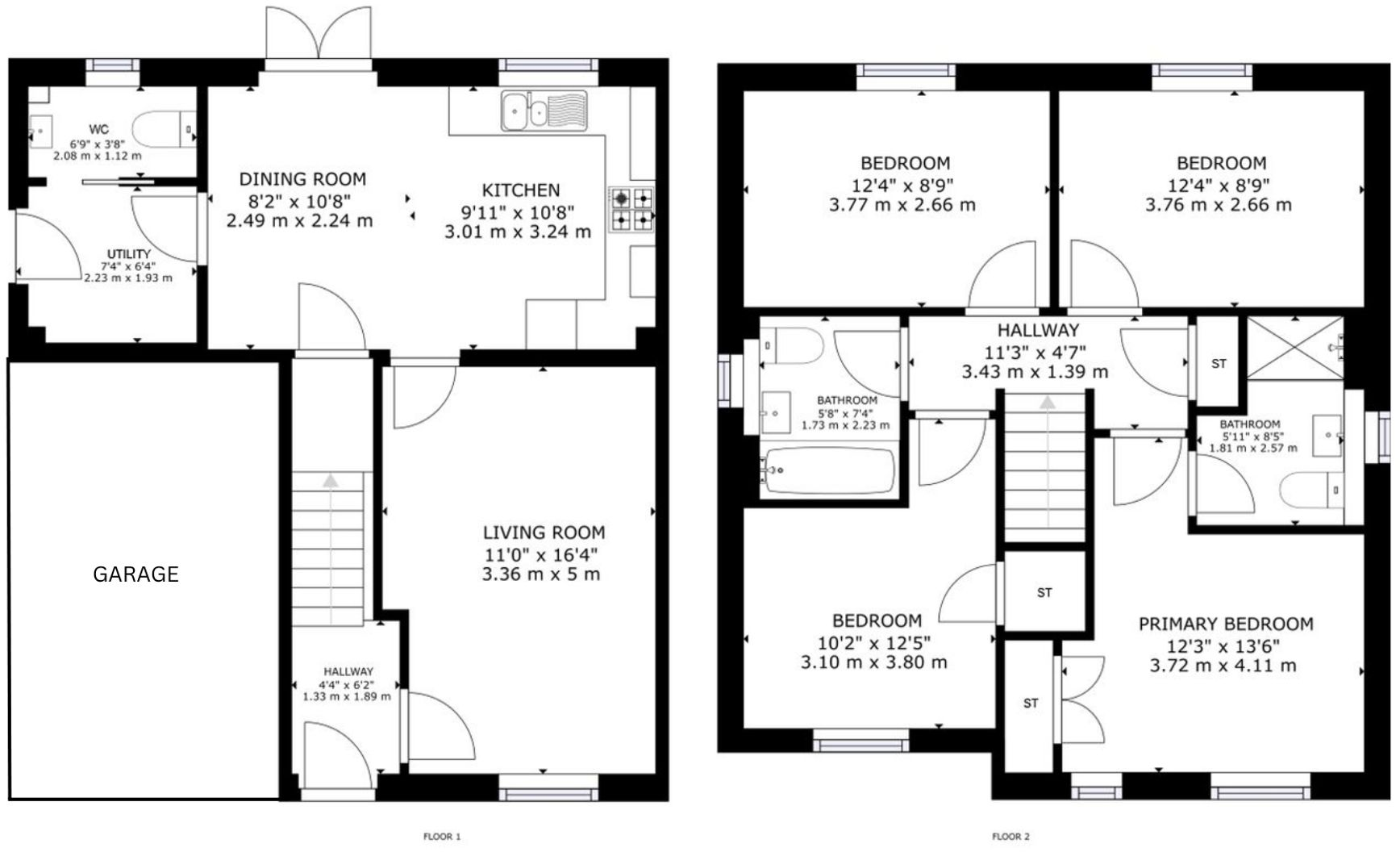
A bright, modern detached family home arranged over two storeys, set within a private residential development in Perth. Ground floor living centres on a generous dining kitchen, useful utility and a light lounge — practical spaces for everyday family life. Solar panels and an EPC B rating help reduce running costs, while fast broadband and excellent mobile signal support home working and connectivity.
Upstairs offers a master bedroom with en‑suite plus three further well‑proportioned bedrooms and a family bathroom, giving flexible sleeping arrangements for children or guests. Outside there is a driveway and single garage, and a manageable garden for family activities or low‑maintenance planting.
Important considerations: the property sits in an area classed as very deprived, which may affect local services and resale expectations. Council tax is described as expensive, so running costs should be factored into your budget despite the property’s energy efficiency. The house is an average overall size (about 1,152 sq ft) and will suit buyers seeking comfortable, modern accommodation rather than grand proportions.
Overall this is a practical, contemporary detached home for families wanting good connectivity, straightforward maintenance and local amenities within reach. Its combination of useful living spaces, energy features and private parking makes it a sensible choice for households prioritising comfort and convenience.
4 bedroom house for sale in Buchan Drive, Perth, PH1 — £289,995 • 4 bed • 2 bath • 890 ft²
4 bedroom detached house for sale in 7 Consul Road, Perth, Perth and Kinross, PH1 — £325,000 • 4 bed • 2 bath • 1292 ft²
3 bedroom detached bungalow for sale in Austen Way, Scone, PH2 — £349,000 • 3 bed • 2 bath • 893 ft²
4 bedroom detached house for sale in Corsie Avenue, Perth, Perth and Kinross, PH2 — £365,000 • 4 bed • 2 bath • 1825 ft²
5 bedroom detached house for sale in Forgan Grove, Forgandenny, Perth, Perth and Kinross, PH2 — £730,000 • 5 bed • 5 bath • 4549 ft²
4 bedroom detached house for sale in David Douglas Avenue, Scone, Perth, PH2 — £420,000 • 4 bed • 3 bath • 1856 ft²






















































































