GU21 2RW - 2 bedroom semidetached house for sale in Oak Tree Road, Kna…

View on Property Piper

2 bedroom semi-detached house for sale in Oak Tree Road, Knaphill, Woking, GU21

Summary - 41 OAK TREE ROAD KNAPHILL WOKING GU21 2RW

2 bed 1 bath Semi-Detached

### Standout Features:
- Charming semi-detached character home with a traditional brick exterior
- Two generously sized double bedrooms
- Well-maintained and modern bathroom with shower
- Expansive South Westerly rear garden, ideal for relaxation and gardening
- Off-street parking with additional rear access parking for a caravan/motor home
- Close proximity to Brookwood mainline station (0.8 miles) for easy commuting

### Summary:
Discover this delightful two-bedroom semi-detached character home nestled in the heart of a vibrant community. Offering an inviting ambiance with its charming sitting room featuring a fireplace and views of the magnificent South Westerly garden, this property exudes comfort and potential. The spacious kitchen/breakfast room is perfect for family gatherings, while the impressive garden provides ample space for outdoor activities, gardening, or simply unwinding after a long day.

With the added potential for development and extension (subject to planning permission), this property opens up opportunities for personalization and increased value. Conveniently located just 0.8 miles from Brookwood station, it ensures easy access to London Waterloo and other major cities. Enjoy the nearby amenities in Knaphill village, including shops, restaurants, and schools rated "Good." However, potential buyers should be aware of general upkeep associated with older homes and consider future maintenance needs. Don’t miss out on the chance to make this charming residence your own—properties like this are quickly snatched up!

Property Details

Brochure Descriptions

Image Descriptions

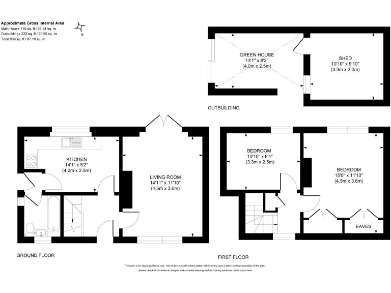
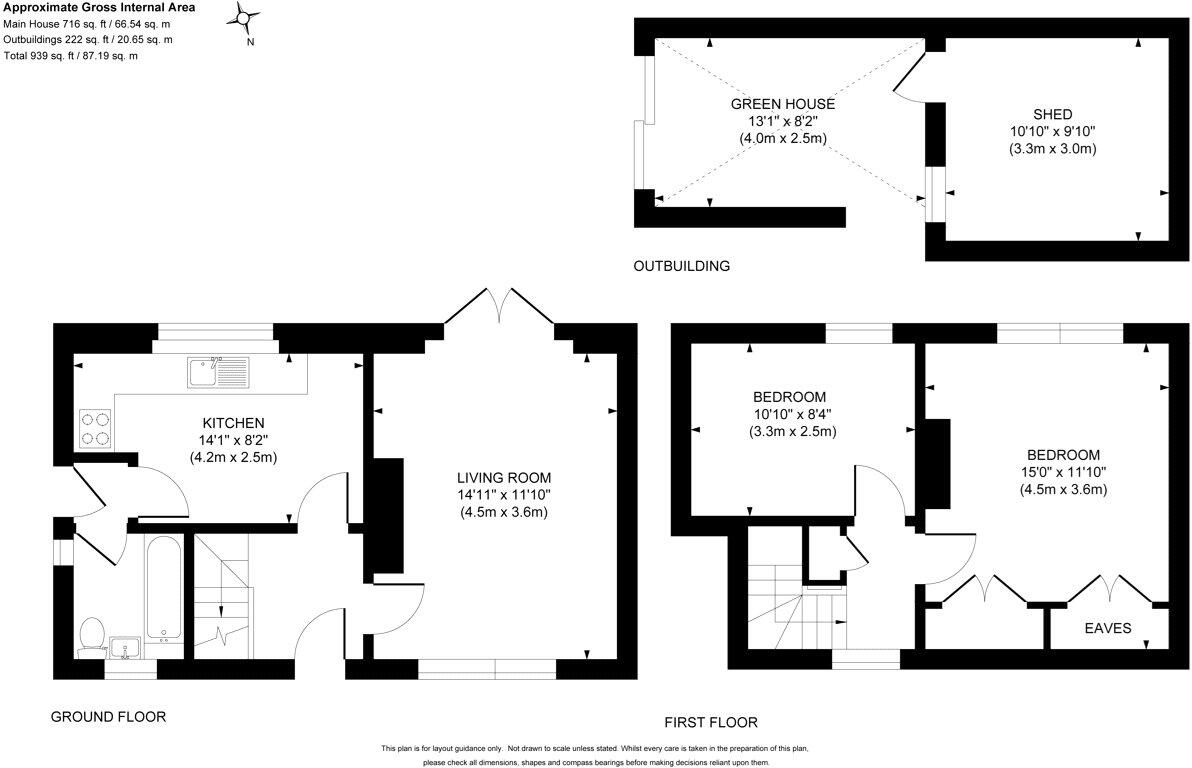
Floorplan Description

Rooms

Textual Property Features

Detected Visual Features

EPC Details

Nearby Schools

Nearest Bars And Restaurants

,,,,}

Nearest General Shops

,,}

Nearest Grocery shops

,,}

Nearest Supermarkets

,,}

Nearest Religious buildings

,,}

Nearest Medical buildings

,,,}

Nearest Airports

,}

Nearest Leisure Facilities

,,,,}

Nearest Tourist attractions

,,}

Nearest Train stations

,,,,}

Nearest Bus stations and stops

,,,,}

Nearest Hotels

,,}

Tags

Local Market Stats

Similar Properties

Meta

High Res Images

Compatible Images

Low res Images

Thumbnails

Raw Images

High Res Floorplan Images

Compatible Floorplan Images

Low res Floorplan Images

FloorplanImages Thumbnail

Raw Floorplan Images