Bright, low‑maintenance home in a semi‑rural garden village near good schools.
Four double bedrooms with en‑suite to master
Built 2023 — modern, low‑maintenance finish
6m x 4.5m open-plan kitchen/dining, garden access
South‑facing rear garden with two patio areas
Garage (powered) plus driveway for three cars
Within Bohunt School catchment — strong family appeal
Modest garden size; not a large plot
Limited accessibility for wheelchair users; council tax expensive
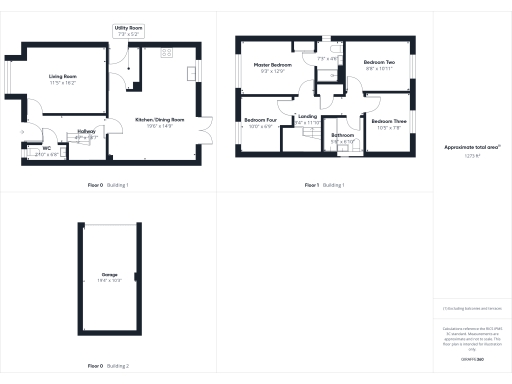
This modern detached house, completed in 2023, offers practical family living across two floors. The Romsey design provides a large living room with bay window and a 6m x 4.5m open-plan kitchen/dining space that flows to two patio areas and a south-facing garden — ideal for family gatherings and everyday life. The fitted kitchen includes multiple integrated appliances and a rare-on-road utility room plus a ground-floor WC.
Upstairs are four double bedrooms, with the principal bedroom featuring integrated wardrobes and a three-piece en-suite. The house is presented in immaculate decorative order and benefits from a larger-than-single powered garage and driveway parking for three cars. Built to current standards, the home has good thermal performance, mains gas heating and fast broadband — suitable for home working and modern family needs.
Location is a strong selling point: set within the new Arborfield Green garden village, the property lies within Bohunt School catchment and close to newly opened supermarket and planned retail amenities. The area offers countryside access and very low crime, while nearby towns provide wider shopping, dining and leisure options.
Notable considerations: the rear garden is modest in size despite the south-facing aspect, and the property is described as having limited accessibility for wheelchair users. Council tax is noted as expensive. Buyers seeking large rural plots or fully accessible accommodation should look elsewhere, though for families wanting a low-maintenance, recently built home in a semi-rural community this house represents a convenient, move-in-ready option.
4 bedroom detached house for sale in Quiller Avenue, Arborfield Green, Reading, Berkshire, RG2 — £675,000 • 4 bed • 3 bath • 1800 ft²
4 bedroom detached house for sale in Stirrup Walk, Arborfield Green, Reading, RG2 — £685,000 • 4 bed • 1 bath • 1613 ft²
4 bedroom detached house for sale in Austen Grove, Arborfield Green, Reading, Berkshire, RG2 — £745,000 • 4 bed • 2 bath • 1496 ft²
3 bedroom semi-detached house for sale in Ambler Drive, Arborfield Green, Reading, Berkshire, RG2 — £500,000 • 3 bed • 2 bath • 1232 ft²
2 bedroom terraced house for sale in Princess Marina Drive, Arborfield Green, Reading, Berkshire, RG2 — £400,000 • 2 bed • 1 bath • 704 ft²
3 bedroom semi-detached house for sale in Orwell Drive, Arborfield Green, Reading, Berkshire, RG2 — £530,000 • 3 bed • 2 bath • 975 ft²














































