Auction opportunity near Morley centre with parking and garden.
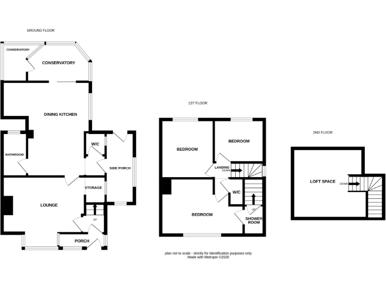
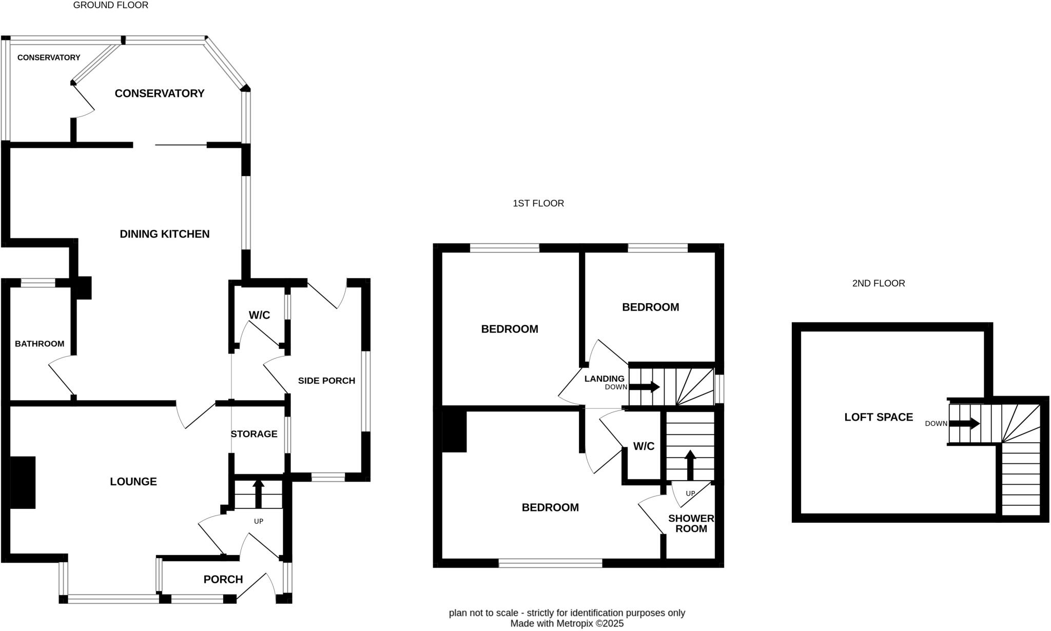
Three bedrooms with period features and renovation potential
A three-bedroom semi-detached freehold offered at auction with a guide price of £150,000+. The house has solid period bones and provides clear scope for internal renovation and modernization to unlock value. Off-street parking and an outside space add practical benefits for occupiers or tenants.
Located within walking distance of Morley town centre and close to M1/M62 links, the property would suit a buy-to-let investor or a hands-on buyer looking for a project. Several well-regarded primary and secondary schools are nearby, supporting rental demand from families.
Important considerations: the property requires internal renovation and modernization; the Energy Performance Certificate is pending. The local area records higher crime levels and relative deprivation, and the plot is small. The home will be sold via traditional auction on 10 December 2025, so buyers should budget for refurbishment costs and factor auction purchase timelines.
2 bedroom end of terrace house for sale in 21 Great Northern Street, Morley, Leeds LS27 9AF, LS27 — £85,000 • 2 bed • 1 bath • 874 ft²
3 bedroom town house for sale in Springfield Avenue, Morley, Leeds, West Yorkshire, LS27 — £200,000 • 3 bed • 1 bath • 582 ft²
3 bedroom semi-detached house for sale in Kentmere Crescent, Leeds, LS14 — £145,000 • 3 bed • 1 bath • 1324 ft²
3 bedroom semi-detached house for sale in Carver Street, Cleckheaton, West Yorkshire, BD19 — £99,950 • 3 bed • 1 bath • 743 ft²
3 bedroom bungalow for sale in Ashfield Avenue, Morley, LS27 — £190,000 • 3 bed • 1 bath • 1109 ft²
3 bedroom semi-detached house for sale in Asket Avenue, Leeds, LS14 1JF, LS14 — £170,000 • 3 bed • 1 bath • 1295 ft²






























































