Ready-to-live-in central SW1V flat moments from Pimlico tube and riverside amenities.
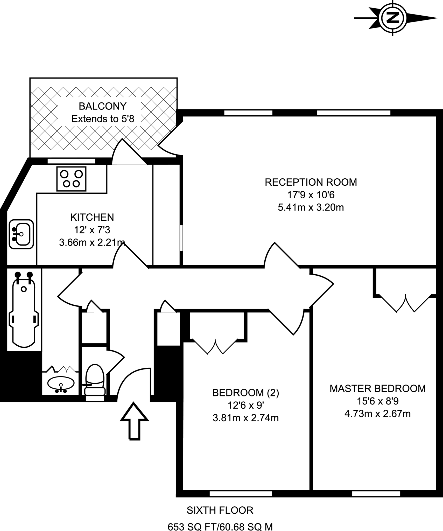
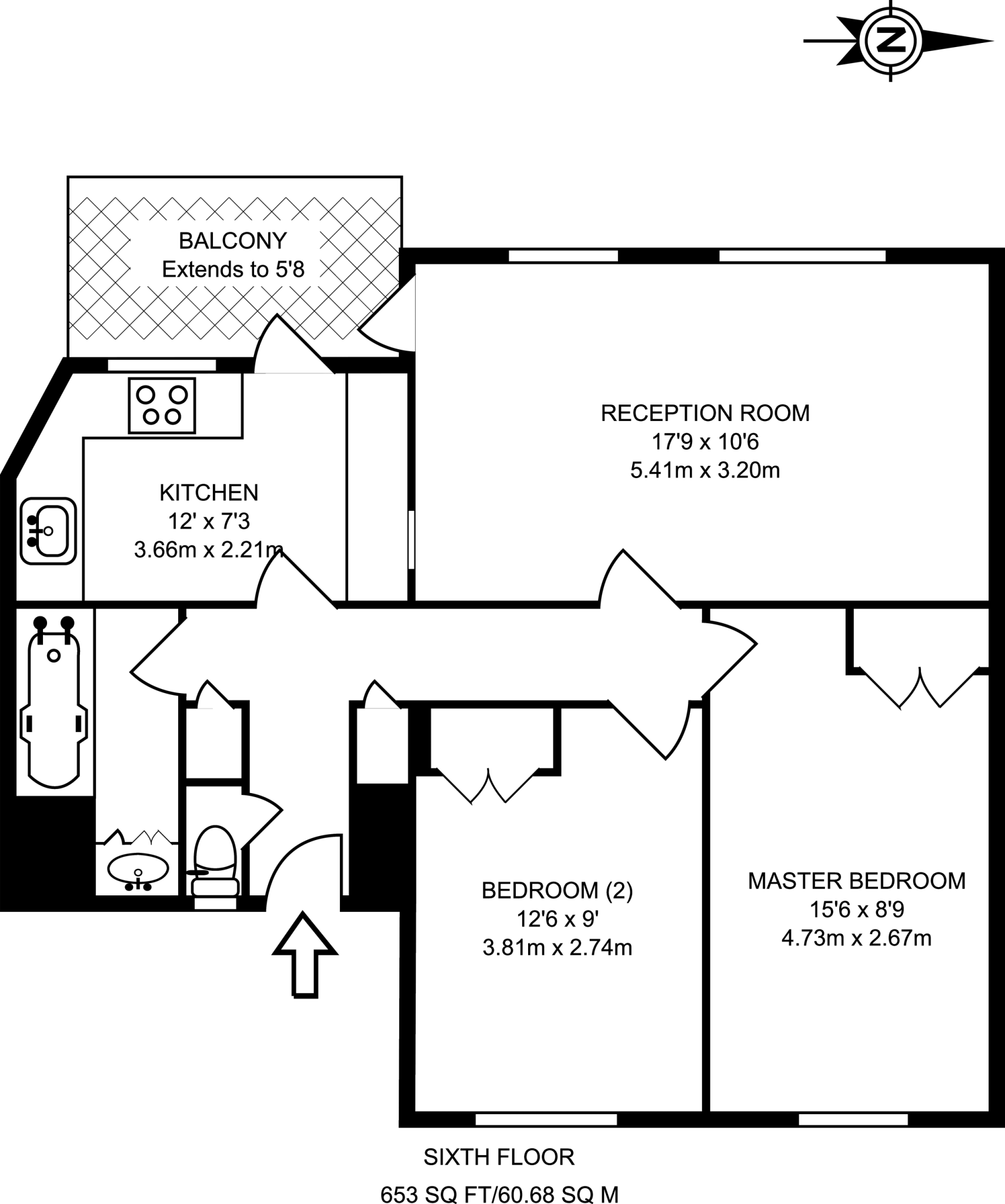
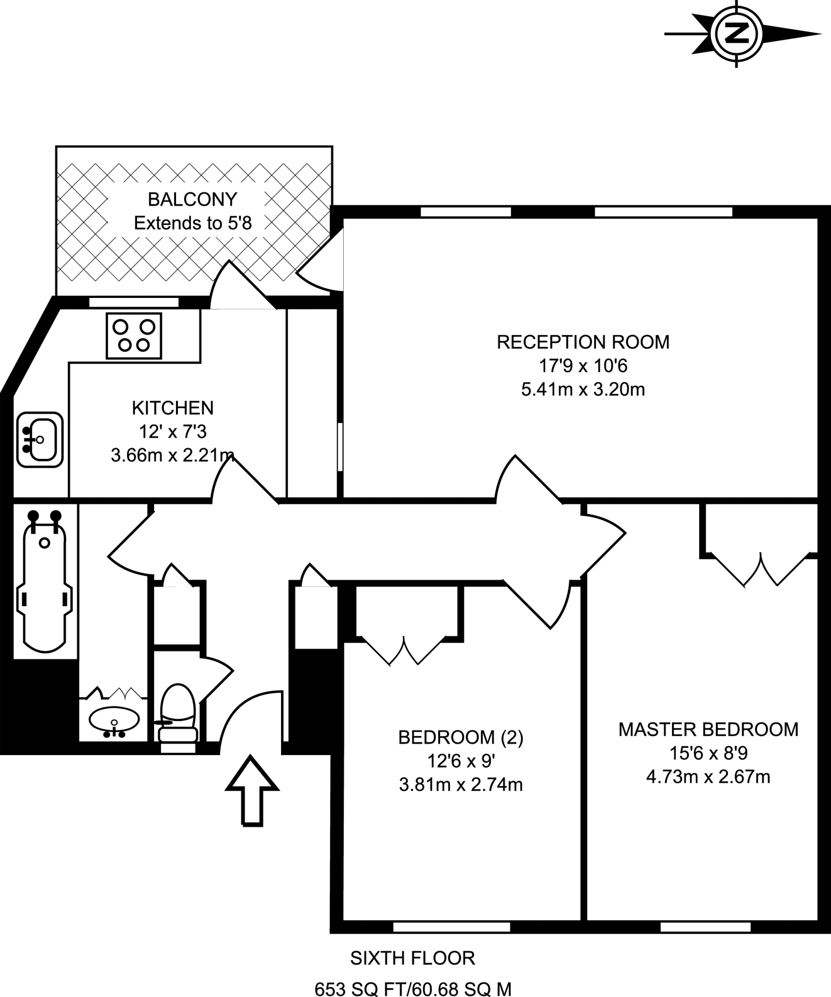
- Sixth-floor apartment with lift access and private balcony
- Bright reception room with space for dining
- Two bedrooms with ample built-in storage
- Modern fitted kitchen and double glazing
- 653 sq ft — average-sized London flat
- Leasehold: ~82 years remaining; nominal ground rent
- Community mains-gas heating; no individual boiler info
- Area: excellent transport, above-average crime, relatively deprived
A bright sixth-floor two-bedroom apartment in Churchill Gardens Estate, offering a generous reception room that opens onto a private balcony. The flat has a modern fitted kitchen, double glazing and good built-in storage, arranged over an efficient 653 sq ft layout suitable for daily living and occasional entertaining.
The location is a major selling point: moments from Pimlico tube, riverside walks and local cafes on Lupus Street, with Victoria and Sloane Square nearby for wider shopping and transport links. Several well-regarded primary and secondary schools are within easy reach, making the area convenient for young families or professionals.
Practical facts to note: the property is leasehold with approximately 82 years remaining and a nominal ground rent. Heating is provided via a community mains-gas scheme. The wider area has above-average crime statistics and is classed as relatively deprived, which may affect long-term capital growth for some buyers.
Ideal for a first-time buyer seeking a ready-to-live-in flat in central SW1V, this home combines modern fittings and good transport access with clear tenure and area considerations to weigh up before committing.
1 bedroom flat for sale in Churchill Gardens, Pimlico, London, SW1V — £400,000 • 1 bed • 1 bath • 436 ft²
2 bedroom flat for sale in Churchill Gardens, Westminster, London, SW1V — £500,000 • 2 bed • 1 bath • 731 ft²
2 bedroom flat for sale in Churchill Gardens, Pimlico, London, SW1V — £520,000 • 2 bed • 1 bath • 704 ft²
2 bedroom flat for sale in Bramwell House,
Churchill Gardens, SW1V — £475,000 • 2 bed • 1 bath • 697 ft²
2 bedroom flat for sale in Churchill Gardens, Pimlico, London, SW1V — £495,000 • 2 bed • 1 bath • 629 ft²
2 bedroom apartment for sale in Churchill Gardens, London, SW1V — £499,950 • 2 bed • 1 bath • 703 ft²














































































































































