Chain-free, large plot and planning permission for a four-bedroom upgrade.
Victorian semi-detached with bay windows and high ceilings
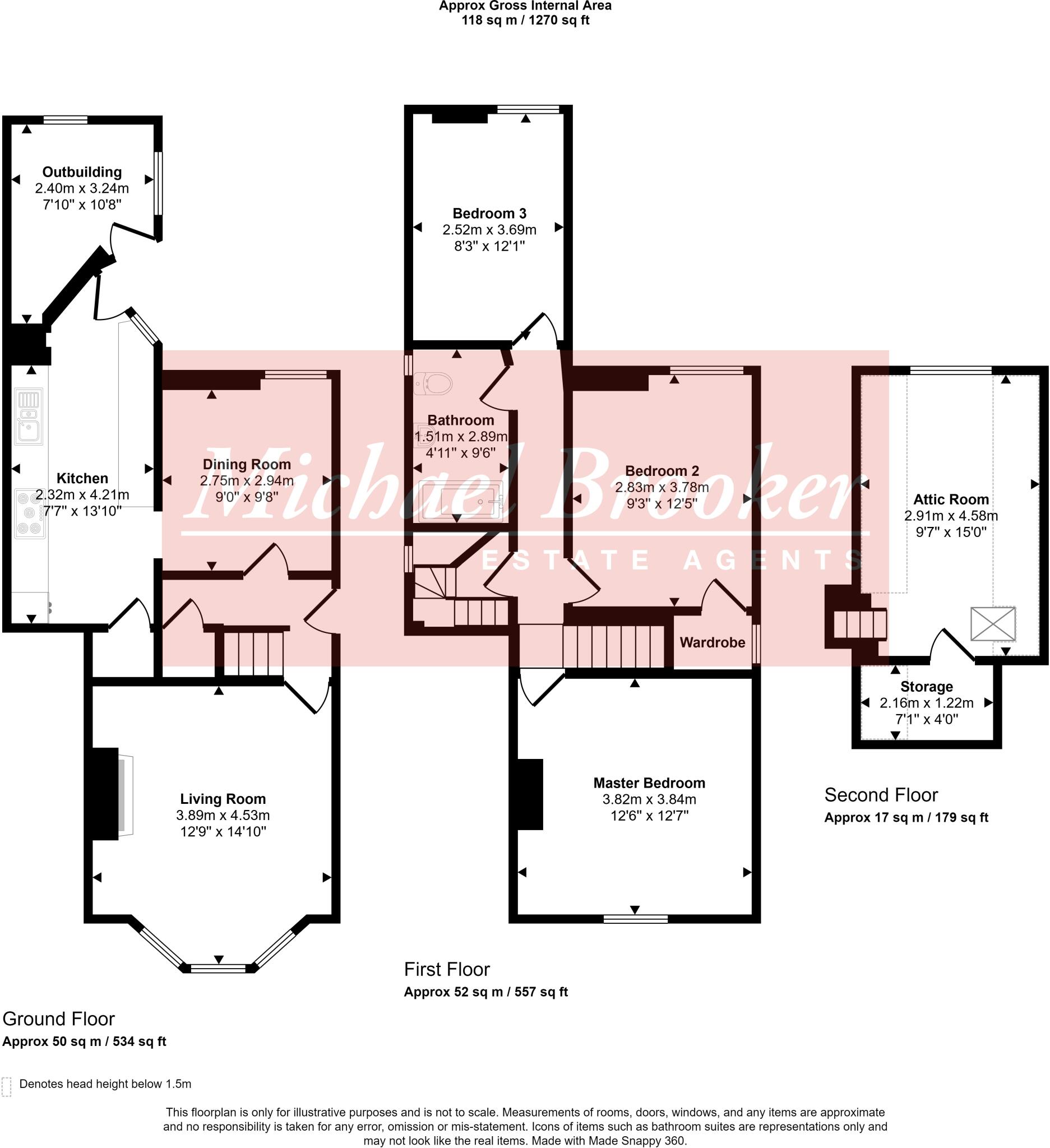
A roomy Victorian semi with handsome bay windows and a huge rear plot, set within walking distance of Crowborough town centre and Goldsmiths Recreation Ground. The house feels bright with high ceilings, engineered oak floors in the living room and a useful attic room with views.
Planning permission has been granted for a two-storey rear extension and loft conversion (WD/2025/0231/F) to create a four-bedroom, two-bathroom home — a clear route to adding value and space. Practical benefits include off-street parking for two cars, direct garden access to the recreation ground and mains gas heating with a Worcester boiler.
Buyers should note this is a solid-brick Victorian build with no installed wall insulation (as-built), and the property has just one bathroom currently. There is clear potential for sympathetic refurbishment, but expect work to modernise kitchens, bathrooms and insulation standards to achieve the planned layout and energy improvements.
This chain-free home suits families seeking space, outdoor access and school catchments, or buyers looking to complete the approved extension and loft works to increase living space and rental or resale appeal.
3 bedroom semi-detached house for sale in Pellings Farm Close, Crowborough, East Sussex, TN6 — £395,000 • 3 bed • 1 bath • 814 ft²
3 bedroom semi-detached house for sale in Wealden Close, Crowborough, TN6 — £299,950 • 3 bed • 1 bath • 682 ft²
2 bedroom semi-detached house for sale in Green Lane, Crowborough, East Sussex, TN6 — £300,000 • 2 bed • 1 bath • 917 ft²
3 bedroom semi-detached house for sale in Western Road, Crowborough, TN6 — £370,000 • 3 bed • 1 bath • 929 ft²
3 bedroom semi-detached house for sale in Harecombe Road, Crowborough, TN6 — £425,000 • 3 bed • 1 bath • 997 ft²
3 bedroom semi-detached house for sale in Rockington Way, Crowborough, TN6 — £325,000 • 3 bed • 2 bath • 639 ft²










































































































































