- Spacious one-bedroom apartment of approx. 618 sq ft
- Separate dedicated office room within the building
- Part-period features: high sash windows and timber floors
- Share of freehold ownership — long-term control advantage
- Double glazing fitted post-2002; cheap council tax
- Community mains-gas heating; likely service/estate costs apply
- Sloped/low ceilings in some attic-style areas limit headroom
- Local area: higher crime and deprivation indicators to note
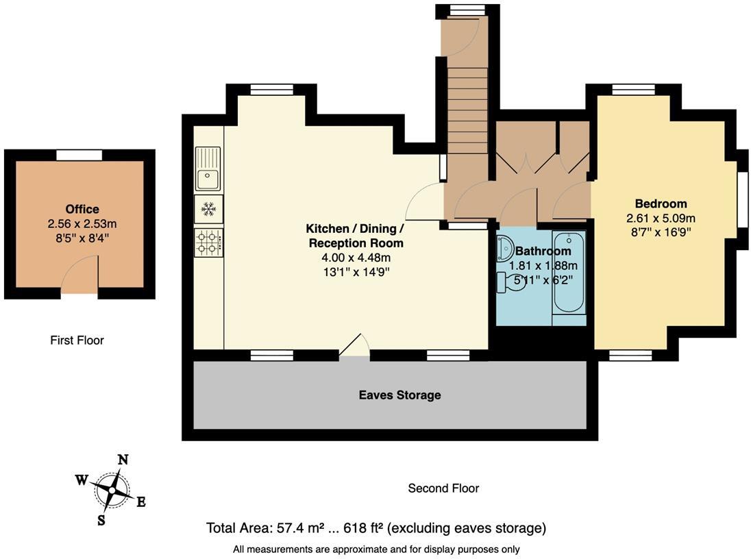
Set within a handsome Victorian terrace, this second-floor one-bedroom apartment offers more space than typical one-beds — about 618 sq ft — and a flexible layout that suits first-time buyers or professionals. High ceilings and sash windows in parts of the property retain period character, while timber floors and a modern bathroom give a clean, ready-to-live-in feel. A separate, dedicated office room in the building is a practical bonus for working from home.
The apartment is share of freehold and benefits from double glazing (installed post‑2002) and connection to mains gas via a community heating scheme. The open-plan kitchen/dining/reception is sociable and bright, while the bedroom provides generous proportions and built-in storage. Council tax is described as cheap, which helps running costs for a new owner.
Be candid about the trade-offs: parts of the home include lower, sloped ceilings (attic-style areas) that limit headroom and furniture placement. The property sits in an area with higher crime statistics and local deprivation indicators, which may concern some buyers and could impact resale or rental yields. Transport links are nonetheless convenient, with Hackney Central and Hackney Downs within walking distance for Overground and mainline services.
Overall this is a spacious, characterful one-bedroom with practical home‑working space and ownership benefits (share of freehold). It will particularly appeal to buyers seeking a roomy first home in Hackney who are comfortable with an urban location that has both strong community amenities and some socio-economic challenges.















































































