Comfortable low-maintenance apartment close to shops and transport for downsizers.
No onward chain; first-floor apartment for over-55s
Juliet balcony with views over well-maintained communal gardens
Communal residents' lounge, scheme manager and onsite parking
Stairlift to first floor aids accessibility but property is upstairs
Recently refurbished walk-in shower; practical accessible layout
Service charge £3,741 pa (2024); charges reviewed yearly
Leasehold — 94 years remaining (from 15/07/1993)
Heating details mixed; electric night storage heaters listed — verify system
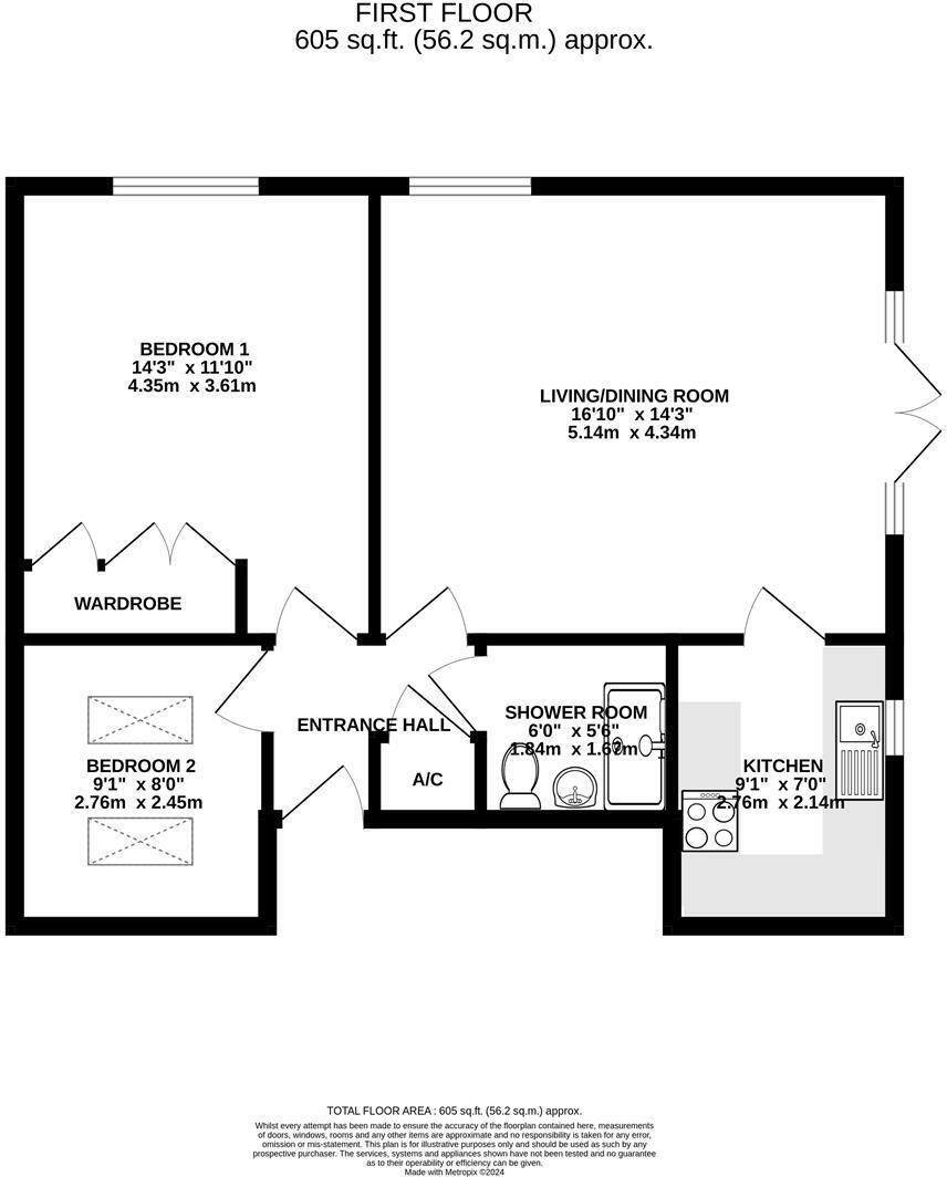
This first-floor, two-bedroom retirement apartment in Glebe Farm Court is designed for manageable, low-maintenance living for the over-55s. The light living/dining room opens to a Juliet balcony overlooking well-kept communal gardens, and the recently refurbished shower room provides accessible bathing. The development includes a communal lounge, scheme manager and on-site parking, and is offered with no onward chain.
The layout is compact (approximately 605 sq ft) and practical: a large main bedroom with built-in wardrobes, a second bedroom with Velux windows, a fitted kitchen and useful airing cupboard. A stairlift serves the first-floor entrance, aiding access for those who need it. The communal gardens and residents’ lounge create pleasant shared space and a neighbourly atmosphere.
Notable costs and constraints are set out plainly: the annual maintenance charge is £3,741 (2024) and the lease has about 94 years remaining (125-year term from 1993). There is no ground rent but service charges are reviewed yearly. Heating details should be checked at survey—rooms are fitted with electric night storage heaters in the listing, while records also refer to mains gas heating.
This apartment suits buyers seeking to downsize into a settled retirement community close to local shops, a doctor’s surgery and good bus links into Cheltenham. Its manageable size and communal support make it an easy-to-run home, but purchasers should factor in ongoing service charges, lease term and heating arrangements when assessing long-term costs.
2 bedroom retirement property for sale in Glebe Farm Court, Up Hatherley, Cheltenham, GL51 — £230,000 • 2 bed • 2 bath • 860 ft²
2 bedroom semi-detached bungalow for sale in Glebe Farm Court, Up Hatherley, GL51 — £260,000 • 2 bed • 1 bath • 722 ft²
1 bedroom retirement property for sale in LEFROY COURT, Cheltenham, GL51 — £115,000 • 1 bed • 1 bath • 511 ft²
2 bedroom apartment for sale in St Michaels Court Cheltenham Road, Bishops Cleeve, Cheltenham,, GL52 — £150,000 • 2 bed • 1 bath • 657 ft²
2 bedroom retirement property for sale in Pittville Circus Road, Cheltenham, GL52 — £85,000 • 2 bed • 1 bath • 548 ft²
1 bedroom apartment for sale in St. Stephens Road, Cheltenham, Gloucestershire, GL51 — £125,000 • 1 bed • 1 bath • 714 ft²














































