Spacious renovated 4-bed family home with garden studio and rural views..
Newly renovated throughout with high-quality finishes
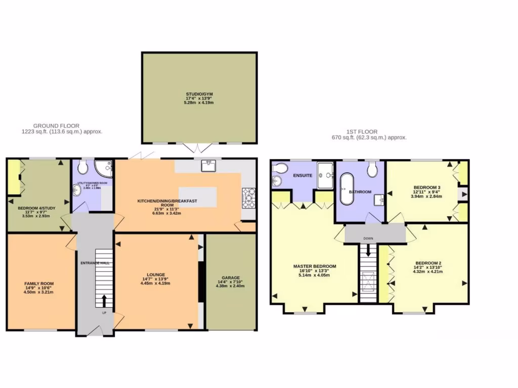
Generous 1,893 sq ft living space across multiple levels
Detached garden office/gym — potential annex or studio
Large plot with private lane, driveway and single garage
Countryside/tree-lined views to one side, good privacy
Dormer layout: some upstairs rooms have sloping ceilings
Freehold, low flood risk, fast broadband and excellent mobile
Average local crime; small-town fringe location
Bright, newly renovated chalet-style detached house on a generous plot in Aston Clinton, ideal for families seeking space and countryside outlooks. The well-equipped interior spans 1,893 sq ft with contemporary finishes throughout, including herringbone flooring and recessed lighting in principal living areas. The layout provides flexible living with 2–3 reception rooms and up to four bedrooms, some set within dormer space with sloping ceilings.
A significant asset is the detached home-office/gym at the bottom of the large garden, currently used as a workspace but readily adaptable as a garden annex or studio. Off-street parking for multiple vehicles and an integral/single garage add practical convenience. Broadband is fast and mobile signal is excellent, supporting remote working and streaming.
Practical points are straightforward: the property is freehold, in a low flood-risk area with moderate council tax, and lies in an affluent, comfortable neighbourhood with good local schools and easy commuter routes. The house sits slightly set back down a private lane and benefits from tree-lined, rural views to one side for added privacy.
Note the chalet/dormer layout means some upstairs rooms have sloping ceilings that reduce usable headroom. Crime levels are average for the area and the location is small-town/town-fringe rather than central village. Overall this is a spacious, ready-to-move-in family home with flexible outbuildings and genuine countryside appeal.
4 bedroom detached house for sale in New Road, Aston Clinton, HP22 — £750,000 • 4 bed • 1 bath • 1712 ft²
5 bedroom detached house for sale in Flora Avenue, Aston Clinton,, HP22 — £1,150,000 • 5 bed • 3 bath • 3000 ft²
5 bedroom detached house for sale in Aston Clinton, Buckinghamshire, HP22 — £1,350,000 • 5 bed • 3 bath • 3808 ft²
4 bedroom detached house for sale in Brook Street, Aston Clinton, HP22 — £875,000 • 4 bed • 3 bath • 2250 ft²
4 bedroom detached house for sale in Waring Crescent, Aston Clinton, AYLESBURY, HP22 — £625,000 • 4 bed • 2 bath • 1475 ft²
5 bedroom detached bungalow for sale in College Road South, Aston Clinton, Aylesbury, Buckinghamshire, HP22 — £675,000 • 5 bed • 3 bath • 2000 ft²






































































