Immediate rental income with parking and refurbishment potential for portfolio buyers.
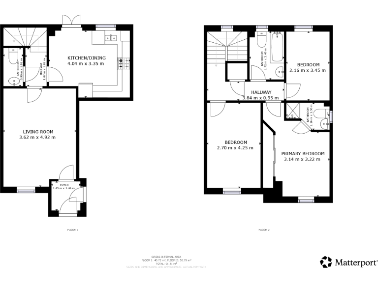
- 3 bedrooms, ensuite, additional bathroom and separate toilet
- Private driveway plus single garage for off-street parking
- Shared front and rear garden; simple maintenance arrangement
- Currently let with long-term tenant; produces £9,900 gross pa
- Freehold tenure; total area about 947 sq ft
- Area shows above-average crime and local deprivation indicators
- Buyers' premium applies on sale; review Let Property Pack
- Broadband and mobile signals are good; suitable for modern tenants
A three-bedroom semi-detached property in Langley Park offered as a buy-to-let with a long-term tenant in situ. The house includes a private driveway, single garage and shared front and rear garden, making it straightforward to manage for a landlord or portfolio buyer. Current gross annual income is £9,900, presenting immediate rental yield while the tenant remains and pays reliably.
The accommodation is traditional in layout with a medium-sized living room, fitted kitchen/diner, one ensuite, a three-piece bathroom and an additional toilet. The property is freehold, of average overall size (approx. 947 sq ft) and benefits from double glazing and good broadband/mobile signal — features attractive to modern renters.
Material considerations: the property sits in an area with above-average crime and relative deprivation indicators, which may affect rental demand and capital growth. A buyers’ premium applies on sale and the property is marketed as an investment, so owner-occupier purchase would require tenant removal or post-sale planning. Buyers should review the Let Property Pack for detailed tenancy and financial information before proceeding.
This listing suits investors and developers seeking immediate income or a medium-term refurbishment project. It offers practical parking and straightforward management, but purchasers should account for local market limitations and factor in any required maintenance or improvement works.
3 bedroom semi-detached house for sale in Balmoral Avenue, Stanley, County Durham, DH9 — £69,000 • 3 bed • 2 bath • 700 ft²
4 bedroom semi-detached house for sale in Durham Road, Stanley, DH9 — £105,000 • 4 bed • 2 bath • 1152 ft²
3 bedroom terraced house for sale in St. Andrews Road, Spennymoor, DL16 — £95,000 • 3 bed • 2 bath • 840 ft²
3 bedroom semi-detached house for sale in Flass Avenue, Durham, County Durham, DH7 — £95,000 • 3 bed • 1 bath • 818 ft²
2 bedroom terraced house for sale in Frederick Street North, Meadowfield, Durham, DH7 — £85,000 • 2 bed • 1 bath • 760 ft²
2 bedroom semi-detached house for sale in Eastern Avenue, Langley Park, Durham, DH7 — £110,000 • 2 bed • 1 bath • 446 ft²


















































































