Spacious family living overlooking the central green with flexible studio space.
4 bedrooms across three floors
2,124 sq ft of living space with principal ensuite and salon
Double garage with EV charging; studio above delivered as shell
Large rear garden, patio and driveway parking
Open-plan kitchen/dining/family room with two bay windows
Overlooks central green; village location with good local schools
Over 80% of development sold; some specification may be CGI/show home
Freehold; no flood risk but council tax banding currently unknown
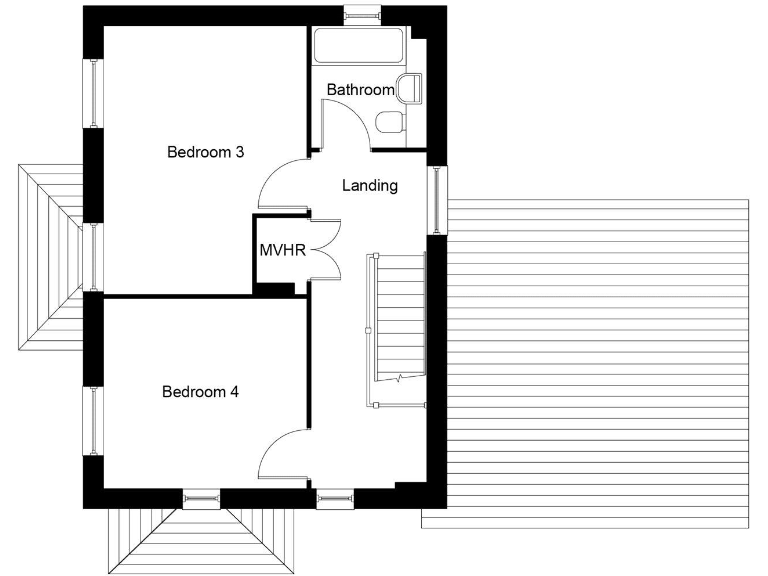
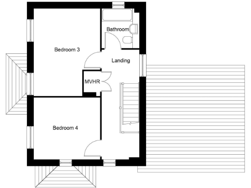
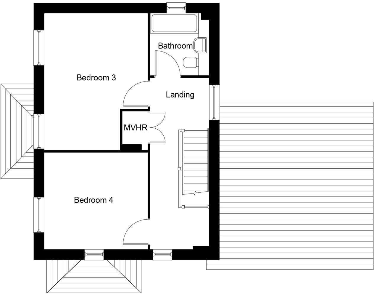
Set on a substantial plot in Burghfield Common, Plot 36 — The Bradfield — is a 2,124 sq ft, three-storey four-bedroom detached new build that overlooks the development’s central green. The layout centres on an open-plan kitchen/dining/family room with two bay windows, a separate living room with French doors to the garden, and a principal suite with dressing/Salon space and an ensuite. Practical touches include a utility room, understairs storage and a cloakroom.
Outside, the house sits on a large plot with a lawned rear garden, patio, driveway parking and a double garage which includes an EV charging point and a studio space above. The studio is a flexible addition for a home office, hobby room or guest space, although it is delivered as a shell and will need finishing.
The Brooks development offers a village feel with pedestrian and cycle links into Burghfield Common, good local schools within walking distance and easy access to Theale station, Reading and the M4. The scheme includes biodiversity measures such as bat and bird boxes and wildflower grassland. Note: some marketing images are of previous show homes or CGI and some specification details may vary.
This home suits families seeking generous, well-planned accommodation in a quiet town-fringe location with strong community amenities and fast commuter links. Buyers should factor in completion and fit-out costs for the studio above the garage and confirm council tax banding post-completion.
4 bedroom detached house for sale in The Brooks, Clayhill Road, Burghfield Common, Reading, RG7 — £630,000 • 4 bed • 3 bath • 1626 ft²
4 bedroom detached house for sale in Clayhill Road,
Burghfield Common,
RG7 3NZ, RG7 — £899,950 • 4 bed • 3 bath • 713 ft²
3 bedroom detached house for sale in The Brooks, Clayhill Road, Burghfield Common, Reading, RG7 — £575,000 • 3 bed • 2 bath • 1244 ft²
4 bedroom semi-detached house for sale in The Brooks, Clayhill Road, Burghfield Common, Reading, RG7 — £575,000 • 4 bed • 3 bath • 1626 ft²
4 bedroom detached house for sale in Clayhill Road,
Burghfield Common,
RG7 3NZ, RG7 — £935,000 • 4 bed • 3 bath • 713 ft²
2 bedroom apartment for sale in Clayhill Road,
Burghfield Common,
RG7 3NZ, RG7 — £324,950 • 2 bed • 1 bath • 543 ft²






















































































