Spacious Victorian townhouse — renovated, garden, parking and attic conversion permission.
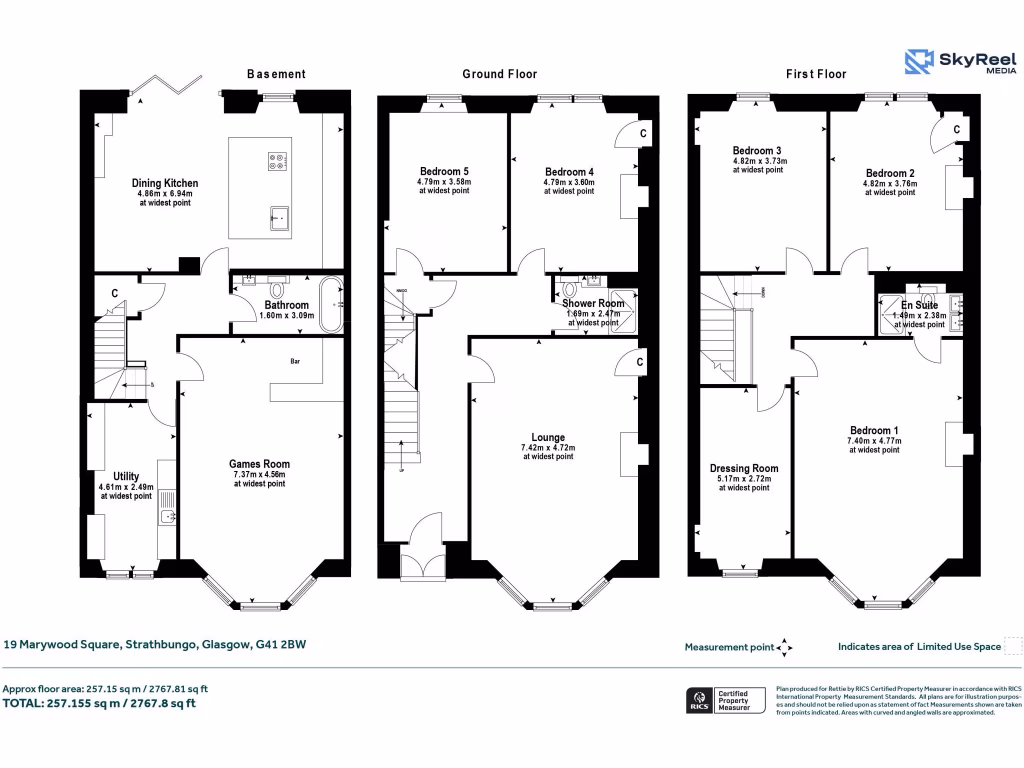
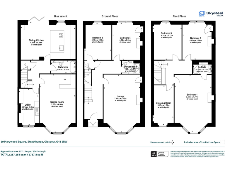
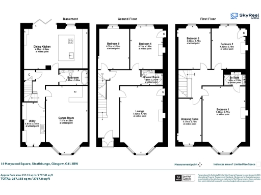
Five bedrooms and three bathrooms across three levels
A striking blonde sandstone townhouse in the heart of Strathbungo, this recently refurbished five-bedroom home combines Victorian character with contemporary finishes. High ceilings, bay windows and original features are complemented by modern fixtures, quality floorcoverings and a well-equipped kitchen with island and integrated appliances. The house extends over three levels and offers generous family living spaces including a bay-windowed lounge, games room/bar, and large dining kitchen with bi-fold doors to the garden.
Practical benefits include gas central heating, double glazing, fast broadband, excellent mobile signal and off-street parking behind an electrically operated gate. The rear garden is landscaped with a tiled patio and seating area, and there is planning permission to convert the attic into additional rooms (bedroom/cinema/office), increasing flexibility and future value. The property totals about 2,767 sq ft (approx. 14 rooms) and is offered freehold with no flood risk.
Notable negatives are disclosed plainly: the wider area is classified as very deprived despite the local popularity of Strathbungo’s cafés and bars, and council tax is quite expensive. While the house has been extensively renovated, buyers should consider ongoing maintenance typical of Victorian sandstone properties and confirm any additional works required after the attic conversion. This home will suit families or professionals seeking spacious period accommodation with modern comforts and strong development upside.
3 bedroom terraced house for sale in Titwood Road, Strathbungo, Glasgow, G41 — £380,000 • 3 bed • 1 bath • 971 ft²
4 bedroom semi-detached house for sale in Dalziel Drive, Pollokshields, Glasgow, G41 — £725,000 • 4 bed • 2 bath • 2575 ft²
5 bedroom terraced house for sale in Carmichael Place, Battlefield, Glasgow, G42 — £399,000 • 5 bed • 2 bath • 2869 ft²
3 bedroom semi-detached house for sale in Titwood Road, Strathbungo, Glasgow, G41 — £380,000 • 3 bed • 1 bath • 747 ft²
2 bedroom apartment for sale in Marywood Square, Strathbungo, Glasgow, G41 — £260,000 • 2 bed • 1 bath • 794 ft²
3 bedroom semi-detached house for sale in Torridon Avenue, Dumbreck, Glasgow, G41 — £485,000 • 3 bed • 3 bath • 2273 ft²


































































































































































































